Dokument

Planritning 4311-31602
Planritningsförslag kontor och lager

Grindstuvägen 44

Kontor/Lager/Övrigt, 195 m2, Stockholm, Bromma

Hyra: Kontakta annonsören

Specialanpassad lokal för forskning och bioanalys - eller kontor!
Nu finns en unik möjlighet att hyra en fullt utrustad forsknings- och kontorslokal med hög teknisk standard i ett attraktivt läge i Bromma. Lokalen är särskilt anpassad för preklinisk forskning och bioanalytiska studier - perfekt för verksamheter inom läkemedelsutveckling, bioteknik eller akademisk forskning.

Observera att inventarierna ägs av nuvarande hyresgäst och måste köpas loss av hyresgästen. Det är givetvis också möjligt att hyra lokalen för vanlig kontorsverksamhet/lager utan inventarierna. Nuvarande hyresgäst återställer lokalen till kontor vid avflytt.

Fördelar med lokalen:
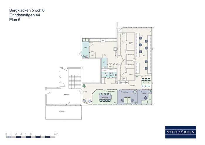
1. Godkänd forskningsanläggning (≈70 m²)
• Eget ventilationssystem
• Utrustning för inhalationsnarkos, stereotaktisk kirurgi, mikrodialys
• System för beteendeanalys (Noldus, PanLab, Metris)
• Möjligheter för provtagning, histologiska tekniker m.m.

2. Bioanalytiskt laboratorium
Laboratoriedelen är utrustad för bioanalys av små molekyler, och rymmer:
• Fyra LC-MS/MS-instrument (Waters, Thermo, Bruker)
• ELISA-läsare
• Arbetsbänkar för provberedning inklusive SPE, avdunstning, dragskåp
• Frysar och förvaringsutrymme

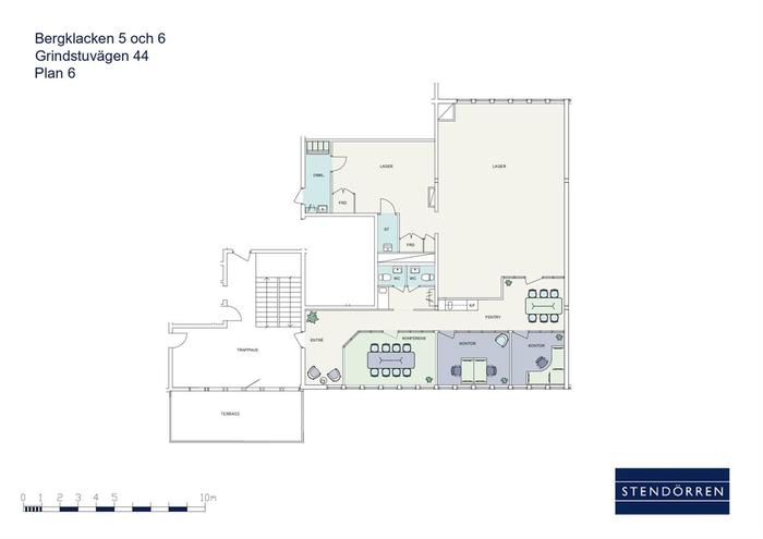
3. Kontorsdel och övriga faciliteter
Utöver laboratorieytorna finns kontorsutrymmen med plats för 5-8 personer samt:
• Pentry
• WC
• Lunch-/mötesutrymme
• Internet via fiber
• Möjlighet till garageplatser i huset

Perfekt läge för forskningsdrivna bolag
Denna lokal är idealisk för små till medelstora bolag inom läkemedelsutveckling, preklinisk forskning, CRO-verksamhet eller liknande - och den ligger dessutom strategiskt i Bromma, med god tillgång till kollektivtrafik, flygplats, service och centrala Stockholm.

Lokalen kan efter överenskommelse med nuvarande hyresgäst hyras ut fullt utrustad, vilket ger möjlighet till snabb etablering och minimerad uppstartstid. Den kan även hyras ut till ordinär kontorsverksamhet eller kombinerad kontor/lagerverksamhet.

Kontakta ansvarig uthyrare för mer information och visning!

Omgivning

Omgivning/natur:

Kontorsfastighet i närheten av Ulvsunda industriområde med närhet till Ulvsundasjön och natur. Parkeringsplatser finns att tillgå.

Planlösning

Våningsplan:

3

Kommunikationer

Fastigheten nås lätt med bil via Drottningholmsvägen men även med allmänna kommunikationer. På gångavstånd, eller med bussen som går strax utanför fastigheten, tar du dig till Alviks station där du kan resa vidare med tunnelbananans gröna linje. På lika kort gångavstånd åt andra hållet har du spårvagnshållplatsen Johannesfred om du vill resa mot Solna och Sundbyberg.

Bromma flygplats ligger endast 10 min bort med bil.

Service

Närservice:

Runt om i området på kort gångavstånd finns flera restauranger occh serveringar. Är du ute efter ett större serviceutbud är det ca 8 min med bil till Bromma Blocks där du hittar över 100 butiker, restauranger och annan service..

Övrigt

Tillträde:

Enligt överenskommelse

Kontakta Annonsör

Maria Björn

Maria Björn