Dokument

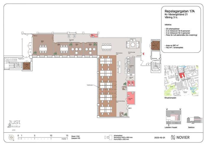
Planritning

Götgatan 36

Kontor, 387 m2, Stockholm, Södermalm

Hyra: Kontakta annonsören

Kontorslokal med karaktär, fantastiskt ljusinsläpp genom takfönster på Götgatsbacken!
Mycket karaktärsfull lokal med 3 m till 3.85 m takhöjd. Mestadels öppen planlösning med flertalet mötes och konferensrum. Öppet pentry och 3 WC + Dusch i lokalen. Stor lasthiss med koppling till lastkaj direkt upp till våningsplanet. Utsikt över Götgatsbackens takåsar.
Välkommen att ta kontakt för visning!

Omgivning

Omgivning/natur:

Fastigheten ligger på Götgatsbacken på Södermalm. Brunogallerian utgör bottenvåningar i fastigheten. Här finns ett fantastiskt utbud av restauranger, barer, caféer, butiker precis utanför dörren.

Parkeringsmöjligheter/garage:

Parkeringsgarage under Medborgarplatsen.

Planlösning

Byggår:

1922

Våningsplan:

4

Planlösning:

Öppen planlösning med flertalet mötes och konferensrum.

Kommunikationer

Kommunikationsmöjligheterna är utmärkta. Tunnelbanestationen Medborgarplatsen och Slussen ligger i nära anslutning till fastigheten vilket ger snabb tillgång till hela Stockholms tunnelbanenät. Dessutom finns flera busslinjer i området.

Service

Närservice:

Serviceutbudet i området är svårslaget. I närområdet finns livsmedelbutiker, apotek, restauranger, gym och annan vardagsservice. Det centrala läget gör att både medarbetare och besökare har nära till allt som behövs.

Övrigt

Tillträde:

Enligt överenskommelse

Kontakta Annonsör

Henrik Viklander

Henrik Viklander