Götgatan 100
Skanstull, Stockholm, 73 m2
Kontorslokal uthyres med ett ypperligt läge vid Skanstull och Ringens Köpcentrum med tillgång till alla faciliteter i samma fastighet som...
Kontor, 300 m2, Stockholm, Skanstull
Hyra: Kontakta annonsören
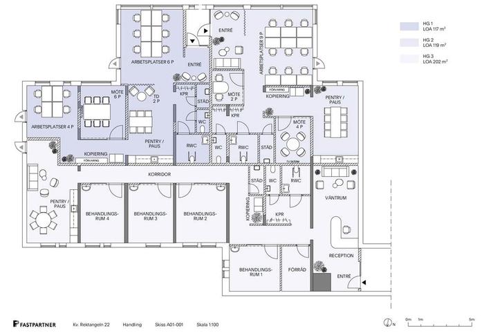
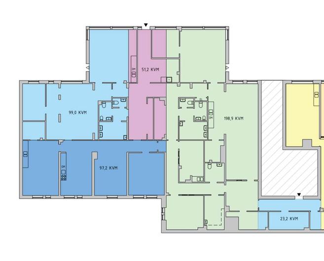
Nu finns möjligheten att hyra kontorslokaler mellan 100-450 kvm med Södermalms bästa läge vid Ringens Köpcentrum . Lokalerna är mycket lugnt belägna på en vacker innergård med fina grönområden och uteplatser. Egna entréer direkt från den trevliga innergården.
Läget i samma hus som Ringen Galleria gör att all tänkbar service finns i kvarteret.
Lokalerna kan eventuellt hyras momsfritt för t ex verksamheter inom vård och omsorg.
Ytorna iordningställs i samråd med era önskemål och med tillträde under hösten 2025. Se förslag på olika planlösningar bland bilderna. Eventuellt kan garageplats hyras separat.
Yta 100-450 kvm
Hyra efter ö k
Nextor Group AB
[email protected]