Gammelgårdsvägen 38

Kontor, 230 m2, Stockholm, Kungsholmen-Essingen

Hyra: Kontakta annonsören

Kontor på Stora Essingen

Kontorslokaler på Stora Essingen - momsfria hyresgäster sökes

Vi erbjuder tre trivsamma och flexibla kontorslokaler på Stora Essingen i en momsfri fastighet, perfekt för verksamheter som inte är momspliktiga.
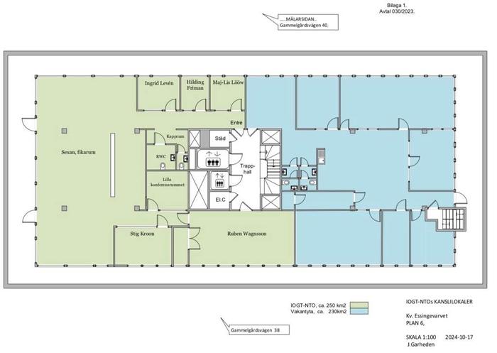
• Toppvåning (ca 230 kvm): Representativ lokal med fantastisk utsikt, egen uteplats, kontorsrum, konferensrum, kök och toalett.
• Mellanplan (ca 230 kvm): Ljus och funktionell kontorslokal med sjöutsikt, kontorsrum, konferensrum, kök och toalett.
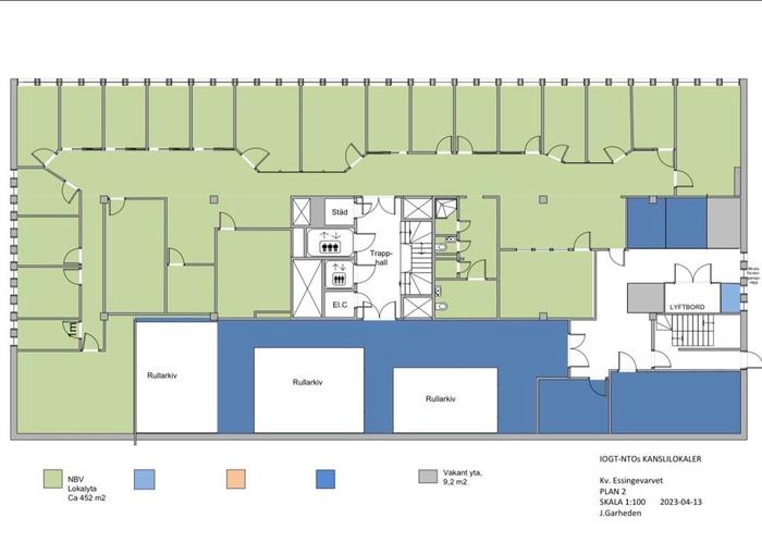
• Entréplan (ca 452 kvm): Stor och flexibel lokal med musikstudio, kontorsrum, konferensrum, kök och toalett.

BESKRIVNING

Exklusivt kontor med uteplats och panoramautsikt - ca 230 kvm

Denna toppvåning erbjuder en inspirerande arbetsmiljö med fantastisk utsikt över vattnet och en egen uteplats. Lokalen på ca 230 kvm består av kontorsrum, konferensrum, kök och toalett och är i mycket bra skick. Perfekt för företag som söker en representativ arbetsplats i en lugn och naturnära miljö. Fastigheten är momsfri, vilket innebär att endast momsfria hyresgäster är aktuella.

Ljus kontorslokal med sjöutsikt - ca 230 kvm

 På mellanplanet finns denna trivsamma kontorslokal om ca 230 kvm med utsikt över vattnet. Även om vyn inte är lika slående som från toppvåningen, erbjuder lokalen ljusa och funktionella ytor. Den består av kontorsrum, konferensrum, kök och toalett och är i bra skick. En utmärkt arbetsplats för företag som vill ha en inspirerande och praktisk kontorsmiljö. Fastigheten är momsfri och vi söker därför momsfria hyresgäster.

Stor och flexibel lokal med musikstudio - ca 452 kvm

 På entréplan finns en rymlig och mångsidig lokal om ca 452 kvm som inkluderar kontorsrum, konferensrum, kök, toalett och en musikstudio. Även om lokalen saknar utsikt, erbjuder den goda ytor och en flexibel planlösning. Perfekt för verksamheter inom musik, media eller andra kreativa branscher som kräver specialanpassade utrymmen. Lokalen är i bra skick och fastigheten är momsfri, vilket innebär att vi söker momsfria hyresgäster.

LOCUS ADVICE

Locus Advice är ett fastighetskonsultbolag med fokus på kommersiella fastigheter och lokaler.
Vi arbetar med


  • Lokaluthyrning

  • Lokalöverlåtelser 

  • Sökuppdrag på spotmarknaden eller tenant rep

  • Transaktionsrådgivning

  • Värdering

  • Projektledning

  • Vi representerar även hyresgäster som vill ha hjälp med sitt lokalsökande.


Genom etablerade samarbeten med både stora och små fastighetsägare har vi tillgång till ett stort utbud av lokaler utöver vad vi kan marknadsföra i vår egen regi. Via dessa samarbeten kan vi med stor sannolikhet hjälpa er hitta den lokal ni söker efter.

VISNING/KONTAKT - FREDRIK

Vänligen respektera säljarens / hyresvärdens önskemål om bokad visning.

För mer information eller visning av objektet, hör av er till Locus Advice genom kontaktformuläret eller ring Fredrik Lundberg på tel 08-558 094 47 eller Tim Ringdahl Liljegren på 08-558 094 41.


Växeln är öppen helgfria vardagar mellan 08.30-17.00
Locus Advice tel 08-558 094 40

Kontakta Annonsör

Tim Liljegren

Tim Liljegren