Oxtorget 3
Stockholm CBD, Stockholm, 190 m2
Kontorslokal i bästa cityläge - Oxtorget Nu finns möjligheten att hyra en kontorslokal med ett av stadens mest attraktiva lägen...
Kontor, 204 m2, Stockholm, Stockholm CBD
Hyra: Kontakta annonsören
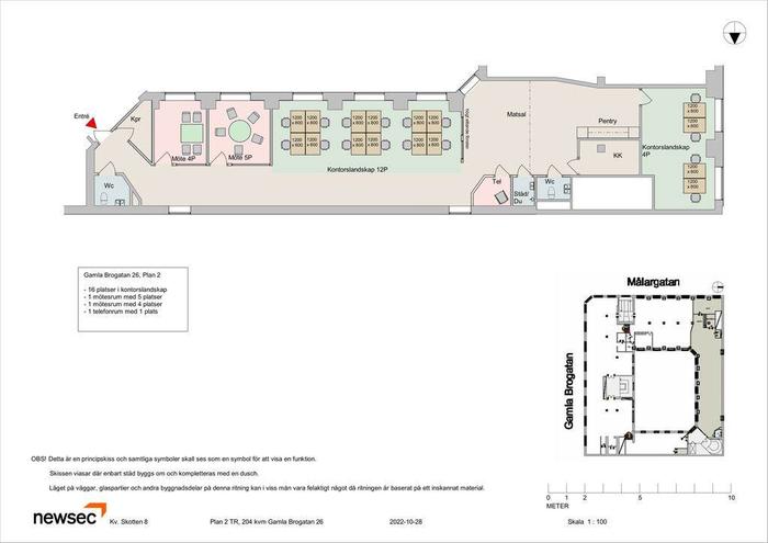
Modern kontorslokal med i en representativ fastighet och ett mycket bra cityläge vid Hötorget, Centralstation och Drottninggatans puls. Lokalen är i mycket gott skick och i genomgående ljusa kulörer. Planlösningen består av ett flertal kontor och mötesrum samt en öppen yta, telefonrum, pentry och två wc. Trevlig innergård med planteringar och uteplatser för intag av fika och luncher. Tillträde enligt ö k.
Hyra ca 125 000 kr/mån ex skatt
Ytan 204 kvm
Nextor Group AB
[email protected]