Ekholmsvägen 229

Kontor, 493 m2, Stockholm, Skärholmen

Hyra: Kontakta annonsören

Fristående lokal med egen gård i Skärholmen - perfekt för förskola, vård, kontor eller utbildning

Välkommen till en mångsidig och karaktärsfull lokal med stora möjligheter.
På lugna Ekholmsvägen 229 i Skärholmen erbjuds en fristående byggnad om 493 m², tidigare använd som förskola - nu redo för nästa verksamhet.

BESKRIVNING

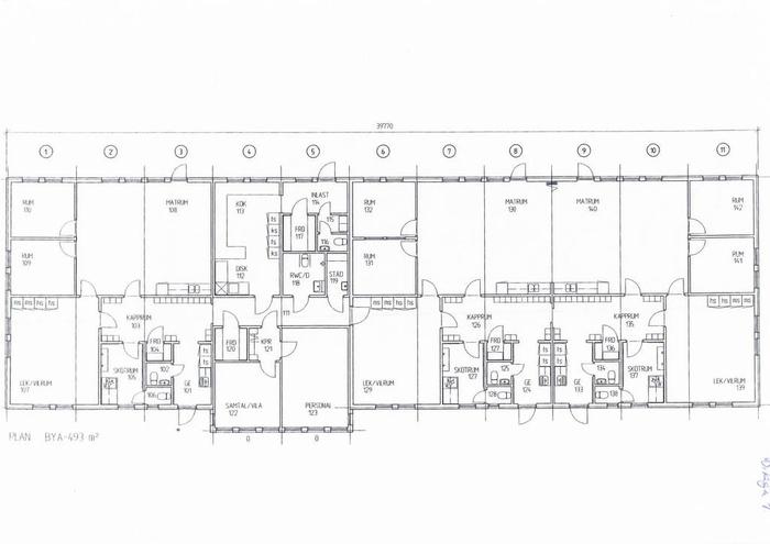
En flexibel lokal med många användningsområden

Den välplanerade byggnaden är idag indelad i tre avdelningar med rum i olika storlekar, vilket skapar flexibilitet och funktionalitet för många typer av verksamheter. Lokalen lämpar sig utmärkt för:


  • Förskola eller pedagogisk verksamhet


  • Vårdcentral, BVC eller omsorgsverksamhet


  • Kontor, utbildning eller föreningsverksamhet


  • Kreativ studio eller annan företagsverksamhet



Egen byggnad med gård

Här får du hela fastigheten för dig själv, inklusive en inhägnad gård som lämpar sig för lek, aktiviteter eller utevistelse. Den fristående placeringen ger både integritet och trygghet - perfekt för verksamheter som värdesätter lugn, avskildhet och kontroll över sin egen miljö.

Fullt utrustad och anpassningsbar

Lokalen är utrustad med tillagningskök, flera toaletter, personalutrymmen och gott om förvaring. Planlösningen kan anpassas efter behov - oavsett om du önskar öppna kontorsytor, behandlingsrum eller klassrum.

Läget - nära både stad och natur

Ekholmsvägen 229 ligger i ett lugnt bostadsområde i Skärholmen, med nära till både service, kommunikationer och grönområden.


  • Kommunikationer: Flera busslinjer trafikerar området och Skärholmens tunnelbanestation nås på bara några minuter. Snabb access till E4/E20 gör läget utmärkt även för bilburna.


  • Service: Skärholmens centrum erbjuder ett brett utbud av butiker, restauranger och service. Även Kungens Kurva med IKEA och stora handelsområden ligger i närheten.


  • Nära naturen: Promenadavstånd till Mälarens strand, Vårbergstoppen och Sätraskogens naturreservat - perfekt för verksamheter som vill ha närhet till grönska och rekreation.


 

Kontakta Annonsör

Joanna Eriksson

Joanna Eriksson