Dokument

Planritning

Blasieholmsgatan 4A

Kontor, 976 - 1952 m2, Stockholm, Stockholm CBD

Hyra: 6 500 /m²/år

Två egna våningar på Blasieholmen!
Välkommen till denna representativa kontorslokal, perfekt belägen på Blasieholmen! Lokalen har en öppen och effektiv layout i två våningsplan, med flera entréer för maximal flexibilitet.

Omgivning

Omgivning/natur:

Blasieholmen har ett unikt innerstadsläge, såväl historiskt som rent geografiskt. Området har länge utgjort centrum för Stockholms bank- och finansverksamhet och det är inte svårt att förstå varför. Här sitter man bokstavligen mitt i city men samtidigt lugnt och avskilt.

Parkeringsmöjligheter/garage:

Garage finns i huset.

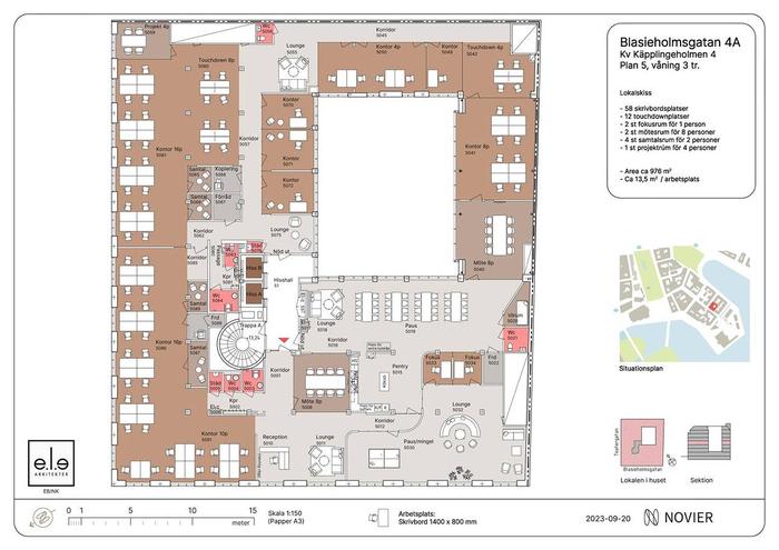
Planlösning

Byggår:

1929

Våningsplan:

6

Planlösning:

Effektiv planlösning med möjlighet till många arbetsplatser, möten och mötesplatser. En interntrappa kommer att byggas mellan våningsplanen.

Kommunikationer

Kommunikativt ligger Blasieholmen bra - trots det lugna läget. Tunnelbanenedgång (Kungsträdgården blå linje) finns alldeles runt hörnet och flera innerstadsbussar stannar alldeles i närheten. SL-båt 80 mot Nacka/Lidingö/Ropsten vid Nybroplan och båt 83 mot Waxholm vid Strömkajen.

Service

Närservice:

I kvarteren runt fastigheten finns flera restauranger som till exempel Grands Veranda, Strand Hotell och B.A.R. som ligger i huset. Och på bara några minuters avstånd ligger Stureplan, Kungsträdgården och city. Vill man koppla av på lunchen så erbjuder Skeppsholmen och Nybroviken såväl kulturupplevelser som vackra promenadstråk.

Övrigt

Tillträde:

Enligt överenskommelse

Utgångshyra kr/m2/år:

6500

Kontakta Annonsör

Fredrik Lindén

Fredrik Lindén