Dokument

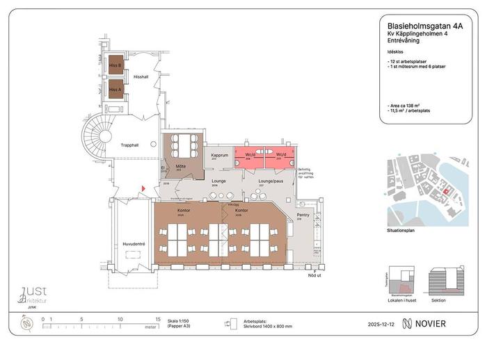
Ritning 138 kvm

Blasieholmsgatan 4A

Kontor, 138 m2, Stockholm, Stockholm CBD

Hyra: 6 600 /m²/år

Öppen och ljus lokal i bottenvåning - exponering mot gatan!
Här finns en öppen, ljus och effektiv lokal, lämplig för kontor, showroom eller utbildningslokal. Lokalen ligger i entréplan och har bra exponering mot gatan.

Passar fint till det mindre kontoret eller för utbildningsverksamhet. Lägesmässigt perfekt mellan Strömkajen och Nybrokajen.

Färdig för inflytt!

Omgivning

Omgivning/natur:

Blasieholmen har ett unikt innerstadsläge, såväl historiskt som rent geografiskt. Området har länge utgjort centrum för Stockholms bank- och finansverksamhet och det är inte svårt att förstå varför. Här sitter man bokstavligen mitt i city men samtidigt lugnt och avskilt.

Parkeringsmöjligheter/garage:

Garage finns i huset, separat kö.

Planlösning

Byggår:

1929

Planlösning:

Öppen planlösning, dusch och två toaletter.

Kommunikationer

Kommunikativt ligger Blasieholmen bra - trots det lugna läget. Tunnelbanenedgång (Kungsträdgården blå linje) finns alldeles runt hörnet och flera innerstadsbussar stannar alldeles i närheten. SL-båt 80 mot Nacka/Lidingö/Ropsten vid Nybroplan och båt 83 mot Waxholm vid Strömkajen.

Service

Närservice:

I kvarteren runt fastigheten finns flera restauranger som till exempel Grands Veranda, Strand Hotell och B.A.R. som ligger i huset. Och på bara några minuters avstånd ligger Stureplan, Kungsträdgården och city. Vill man koppla av på lunchen så erbjuder Skeppsholmen och Nybroviken såväl kulturupplevelser som vackra promenadstråk.

Övrigt

Övrigt:

BREEAM Im-use - Good.
Kvarteret Käpplingeholmen ligger i hörnet av Blasieholmsgatan och Teatergatan. Huset, som byggdes 1929, omfattande renoverad under 2007 som förvandlade fastigheten till Blasieholmens mest attraktiva byggnad. Fasaden har fräschats upp ordentligt men samtidigt fått behålla sin stilrena funkisprägel. Även området kring fastigheten rustas upp.

Eftersom fastigheten är pelarkonstruerad erbjuds stor flexibilitet vad gäller planering och disposition. Ni väljer själva om ni vill sitta i öppna landskap eller avdelat i mindre enheter - allt efter vad som passar bäst för er verksamhet. Materialen håller genomgående hög standard och oavsett hur ni väljer att inreda ert kontor får ni det senaste inom belysning, ventilation och kommunikation.

Kontraktbeskr.:

Förstahandskontrakt

Tillträde:

Enligt överenskommelse

Utgångshyra kr/m2/år:

6600

Kontakta Annonsör

Fredrik Lindén

Fredrik Lindén