Älvsjö Stationsgata 17

Kontor/Övrigt, 100 m2, Stockholm, Solberga

Hyra: Kontakta lokalförmedlaren för mer info.

I det gamla charmiga stationshuset från 20-talet intill Älvsjö Station finns detta läckra och annorlunda kontor i etage beläget.

Mycket bra kommunikationer, p-platser att hyra på fastigheten samt uteplats i trädgården!

Fastigheten
Huset uppfördes år 1929. Fastigheten är Q-märkt enligt detaljplanen och gul-klassad hos Stockholms Stad. Tomten är ca 821 kvm. I trädgården på husets baksida finns trädgårdsmöbler att nyttja sommartid.

Om lokalen
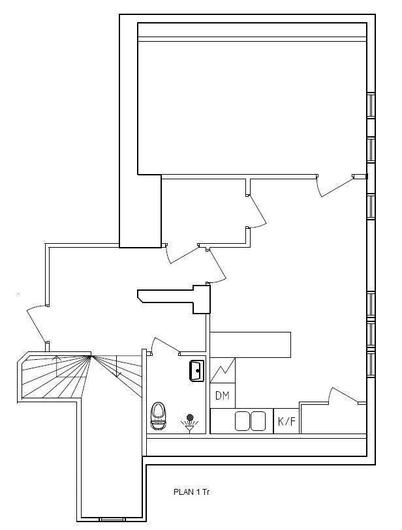
Lokalarean på 1 tr disponeras på en välkomnande entré, ett rymligt pentry med matplats, ett arbetsrum/mötesrum, en trevlig yta med fönster att nyttja i anslutning till trappan upp till det övre planet, ett mindre förråd samt en helkaklad wc med dusch.

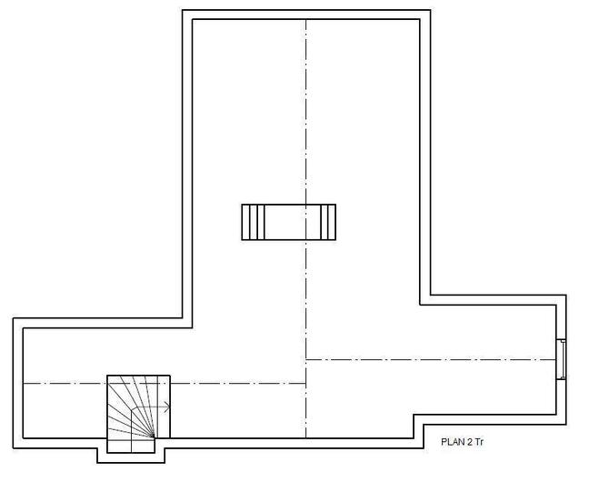
Det övre planet utgörs av en öppen yta som förslagsvis kan nyttjas som kontor. Här är det snedtak med en mycket generös takhöjd upp till nock. Här finns också accessen till ett förråd om ca 25 kvm vilket ingår i hyran.

Bredband:Hyresvärden har dragit in fiber i lokalen.

Ventilation:Självdrag

Säkerhet:Lokalen har säkerhetsdörr.

Omgivning

Parkeringsmöjligheter/garage:

Möjlighet att hyra två parkeringsplatser utomhus på fastigheten.

Planlösning

Byggår:

1929

Kommunikationer

Mycket bra kommunikationer med Älvsjö Station inom ett par minuters gångavstånd med pendeltåg och bussterminal intill. På sikt planeras även tunnelbanan dras till Älvsjö Station. Fastigheten är även lättillgänglig för bilburna med nära anslutning till lederna, Huddingevägen och Älvsjövägen.

Service

Närservice:

Gym och lunchrestauranger finns i närområdet och kort gångavstånd till Älvsjömässan.

Övrigt

Övrigt:

Hyresvärden har fri prövningsrätt vad gäller val av hyresgäst och verksamhet.
Lokalen är vakant idag.

Tillträde:

Enligt överenskommelse.

Hyresinformation:

Kontakta lokalförmedlaren för mer info.

Kontakta Annonsör

Hanna Friman

Hanna Friman