Hammarby Allé 9
Hammarby Sjöstad, Stockholm, 56 m2
Kiropraktor / Fysioterapeut - Hammarby Sjöstad Öppen lokal om 56 kvm - Hammarby Sjöstad, vid gränsen till Södermalm Nu finns...
Kontor, 343 m2, Stockholm, Hammarby Sjöstad
Hyra: 3 247 /m²/år
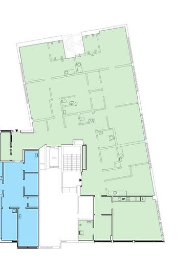
Momsfri kontorslokal i gatuplan med ett fint sjöläge vid Sickla Kanal i centrala Sjöstan. I fastigheten finns redan Vårdcentral, vårdboende m m. Lokalen är anpassad för olika typer av vårdverksamheter med ett flertal handikappanpassade toaletter och duschar, flertal kontorsrum, flera pentryn. Lokalen har två olika entreer . Lokalen kan iordningställas av hyresvärden till hyresgästens behov.
Adress: Aktergatan 19
Hyra 92 800 kr/mån ej moms
Ytan ca 343 kvm.
Nextor Group AB
[email protected]
3247