Dokument

2811-1010 Planritning

Rådmansgatan 24

Kontor, 56 - 254 m2, Skövde, Skövde

Hyra: 1517 kr/kvm/år

Kontorsutrymmen i attraktiva Norrmalm - med härligt ljusinsläpp, egen parkering och närhet till allt ni behöver!

Letar ni efter en arbetsplats som kombinerar funktionalitet och stil?
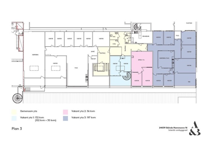
Stenvalvet erbjuder just nu ljusa och flexibla kontorsutrymmen med flertalet fönster och delvis utsikt över Billingen. Lokalerna kan anpassas till mindre ytor om 56 kvm eller 197 kvm, eller totalt 254 kvm, vilket ger er möjlighet att skapa en arbetsmiljö som passar era behov.

För möten finns både konferensrum och mötesrum som passar för olika typer av sammankomster. Lokalen är praktiskt utformad med ett centralt kök/pentry, där ni enkelt kan förbereda lunch eller fika. Det finns en mindre toalett i lokalen och flera gemensamma toaletter i direkt anslutning. För extra förvaring finns en rymlig förrådsdel.

Ni har möjlighet att utforma utrymmena efter era specifika behov, vilket gör lokalen perfekt för just er verksamhet. Dessutom finns bekväma parkeringsmöjligheter precis intill byggnaden, vilket gör det smidigt för både personal och besökare att ta sig hit.

Denna lokal är en utmärkt möjlighet för er som söker en modern och funktionell arbetsplats med alla bekvämligheter inom räckhåll. Ta chansen att skapa er drömarbetsplats i attraktiva Norrmalm!

För mer information och visning, vänligen kontakta Stenvalvet. Vi ser fram emot att välkomna er till er nya arbetsplats!

Omgivning

Belägen i det attraktiva området Norrmalm i Skövde, strax norr om stadens centrum, erbjuder Hammaren 16 en mångsidig miljö med både bostäder och samhällsfunktioner.

I den norra delen av Norrmalm finns ett välutvecklat handelsområde med köpcentrumet Elins Esplanad och flera populära butiker som H&M, ICA Maxi, Clas Ohlson, Elgiganten, Lindex och Apoteket. Detta ger utmärkta shoppingmöjligheter och bekvämligheter för alla besökare.

Den södra delen av stadsdelen präglas av småhus och viktiga samhällsfunktioner som skolor och förskolor, vilket skapar en trygg och familjevänlig miljö.

Inte långt ifrån fastigheten ligger Billingen, ett naturskönt område som erbjuder fantastiska möjligheter för friluftsliv och rekreation året runt, med vandringsleder, skidspår och vacker natur.

Planlösning

- En öppen central del med pentry.
- Kontorsutrymmen i varierande storlekar för att passa olika behov och arbetsgrupper.
- En mindre toalett i lokalen för extra bekvämlighet.
- Flertalet stora fönster som ger ett fantastiskt ljusinsläpp och skapar en inspirerande arbetsmiljö.
- Gemensamma toalettgrupper precis utanför kontorsrummen för enkel och smidig åtkomst.

Kommunikationer

Att ta sig till Rådmansgatan 24 är både enkelt och bekvämt, oavsett vilket färdsätt du väljer. Närmaste busshållplats ligger bara cirka 280 meter från fastigheten, vilket gör det smidigt att resa med kollektivtrafik och ger enkel tillgång till stadens olika delar.

För längre resor erbjuder Skövde Resecentrum, som ligger cirka 1,5 kilometer bort, omfattande transportmöjligheter med många regionala bussar och tåg. Härifrån kan man enkelt nå Sveriges två största städer, med en restid på cirka 2 timmar till Stockholm och cirka 1 timme och 20 minuter till Göteborg med tåg. Detta gör det bekvämt för både pendlare och besökare att resa till och från Skövde.

Skövde är dessutom en central knutpunkt för fyra riksvägar, vilket ger utmärkta möjligheter till bilpendling till och från närliggande städer. Denna välutvecklade infrastruktur gör det enkelt att nå fastigheten, oavsett om man reser med bil, buss eller tåg.

För de som föredrar att cykla finns det också bra cykelvägar som förbinder fastigheten med resten av staden.

Service

Att ta sig till Rådmansgatan 24 är både enkelt och bekvämt, oavsett vilket färdsätt du väljer. Närmaste busshållplats ligger bara cirka 280 meter från fastigheten, vilket gör det smidigt att resa med kollektivtrafik och ger enkel tillgång till stadens olika delar.

För längre resor erbjuder Skövde Resecentrum, som ligger cirka 1,5 kilometer bort, omfattande transportmöjligheter med många regionala bussar och tåg. Härifrån kan man enkelt nå Sveriges två största städer, med en restid på cirka 2 timmar till Stockholm och cirka 1 timme och 20 minuter till Göteborg med tåg. Detta gör det bekvämt för både pendlare och besökare att resa till och från Skövde.

Skövde är dessutom en central knutpunkt för fyra riksvägar, vilket ger utmärkta möjligheter till bilpendling till och från närliggande städer. Denna välutvecklade infrastruktur gör det enkelt att nå fastigheten, oavsett om man reser med bil, buss eller tåg.

För de som föredrar att cykla finns det också bra cykelvägar som förbinder fastigheten med resten av staden.

Kontakta Annonsör

Jan Persson

Jan Persson