Dokument

Planritning 2811-1013

Rådmansgatan 24

Kontor, 132 m2, Skövde, Skövde

Hyra: 680 kr/kvm/år

Tvåplanslokal med ljus och rymd – Nära till allt som ni behöver i populära Norrmalm!

Välkommen till en ljus och rymlig lokal i två plan med en fantastisk utsikt över Billingen!

Denna moderna arbetsplats erbjuder konferensrum och mötesrum som passar både stora och små möten. I loungen kan ni ta en paus och njuta av en avslappnad miljö. I pentryt är det enkelt att fixa lunchen eller fikat. Lokalen är också nära ansluten till gemensamma toalettgrupper, praktiskt placerade för enkel åtkomst.

Kontorsutrymmena är flexibla och kan anpassas efter era specifika behov, vilket ger er möjligheten att skapa en arbetsplats som passar just er verksamhet.

För er som kör bil finns bekväma parkeringsmöjligheter precis intill byggnaden, vilket gör det enkelt för både personal och besökare att ta sig till lokalen.

Denna lokal är en fantastisk möjlighet för er som vill ha en modern och trivsam arbetsplats med alla bekvämligheter inom räckhåll. Missa inte chansen att hyra denna lokal i attraktiva Norrmalm!

För mer information och visning, vänligen kontakta Stenvalvet.
Vi ser fram emot att hjälpa er hitta er nya arbetsplats!

Omgivning

Belägen i det attraktiva området Norrmalm i Skövde, strax norr om stadens centrum, erbjuder Hammaren 16 en mångsidig miljö med både bostäder och samhällsfunktioner.

I den norra delen av Norrmalm finns ett välutvecklat handelsområde med köpcentrumet Elins Esplanad och flera populära butiker som H&M, ICA Maxi, Clas Ohlson, Elgiganten, Lindex och Apoteket. Detta ger utmärkta shoppingmöjligheter och bekvämligheter för alla besökare.

Den södra delen av stadsdelen präglas av småhus och viktiga samhällsfunktioner som skolor och förskolor, vilket skapar en trygg och familjevänlig miljö.

Inte långt ifrån fastigheten ligger Billingen, ett naturskönt område som erbjuder fantastiska möjligheter för friluftsliv och rekreation året runt, med vandringsleder, skidspår och vacker natur.

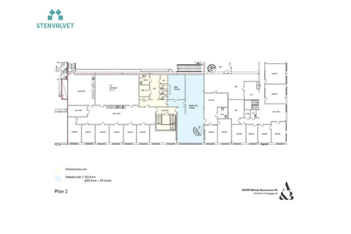
Planlösning

Denna ljusa och rymliga lokal i två plan erbjuder en välplanerad arbetsmiljö med flera funktionella utrymmen:

Plan 3:

- En öppen central del med pentry
- Kontorsutrymmen i varierande storlekar för att passa olika behov.
- En mindre toalett i lokalen för bekvämlighet.
- Flertalet stora fönster som ger ett härligt ljusinsläpp.
- Gemensamma toalettgrupper precis utanför kontorsrummen för smidig åtkomst.

Kommunikationer

Att ta sig till Rådmansgatan 24 är både enkelt och bekvämt, oavsett vilket färdsätt du väljer. Närmaste busshållplats ligger bara cirka 280 meter från fastigheten, vilket gör det smidigt att resa med kollektivtrafik och ger enkel tillgång till stadens olika delar.

För längre resor erbjuder Skövde Resecentrum, som ligger cirka 1,5 kilometer bort, omfattande transportmöjligheter med många regionala bussar och tåg. Härifrån kan man enkelt nå Sveriges två största städer, med en restid på cirka 2 timmar till Stockholm och cirka 1 timme och 20 minuter till Göteborg med tåg. Detta gör det bekvämt för både pendlare och besökare att resa till och från Skövde.

Skövde är dessutom en central knutpunkt för fyra riksvägar, vilket ger utmärkta möjligheter till bilpendling till och från närliggande städer. Denna välutvecklade infrastruktur gör det enkelt att nå fastigheten, oavsett om man reser med bil, buss eller tåg.

För de som föredrar att cykla finns det också bra cykelvägar som förbinder fastigheten med resten av staden.

Service

Att ta sig till Rådmansgatan 24 är både enkelt och bekvämt, oavsett vilket färdsätt du väljer. Närmaste busshållplats ligger bara cirka 280 meter från fastigheten, vilket gör det smidigt att resa med kollektivtrafik och ger enkel tillgång till stadens olika delar.

För längre resor erbjuder Skövde Resecentrum, som ligger cirka 1,5 kilometer bort, omfattande transportmöjligheter med många regionala bussar och tåg. Härifrån kan man enkelt nå Sveriges två största städer, med en restid på cirka 2 timmar till Stockholm och cirka 1 timme och 20 minuter till Göteborg med tåg. Detta gör det bekvämt för både pendlare och besökare att resa till och från Skövde.

Skövde är dessutom en central knutpunkt för fyra riksvägar, vilket ger utmärkta möjligheter till bilpendling till och från närliggande städer. Denna välutvecklade infrastruktur gör det enkelt att nå fastigheten, oavsett om man reser med bil, buss eller tåg.

För de som föredrar att cykla finns det också bra cykelvägar som förbinder fastigheten med resten av staden.

Kontakta Annonsör

Jan Persson

Jan Persson