Dokument

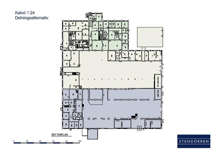
Kalvö_1_24_Etapper
Delning Översikt BV
Delning Översikt 1TR

Raffinaderivägen 4

Industri/Kontor/Lager, 700 - 2000 m2, Nynäshamn

Hyra: 1 000 /m²/år

Industrifastighet med generösa uppställningsytor
På Raffinaderivägen i Nynäshamn finns nu möjlighet att hyra industrilokaler tillsammans med generösa uppställningsytor. Byggnaden som består av ca 8 000 kvm kan delas av till mindre enheter.

Utöver huvudbyggnaden kommer vi även iordningställa uppställningsytor från ca 4 500 kvm upp till ca 12 000 kvm.

Välkommen att kontakta mig för mer information och visning!

Omgivning

Omgivning/natur:

Fastigheten ligger mycket bra belägen med sjökontakt och i närheten av Stockholms nya storhamn Norvik

Kommunikationer

Fastigheten är centralt belägen och nås enkelt med bil via väg 73 (nynäsvägen) men också med allmänna kommunikationer.

Service

Närservice:

Med en kortare promenad nås centrala Nynäshamn där man finner flera lunchrestauranger.

Övrigt

Tillträde:

Enligt överenskommelse

Utgångshyra kr/m2/år:

1000

Kontakta Annonsör

Daniel Sadeghi

Daniel Sadeghi