Lundåsvägen 8-12

Kontor/Lager, 6482 m2, Norrtälje

Fastighetsbestånd till salu i Hallstavik!
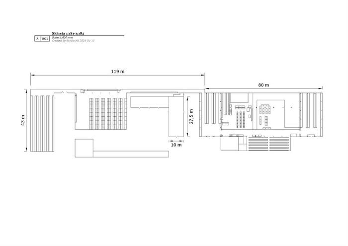
Fastighetsbestånd till salu i Hallstavik. Två av fastigheterna är sammanbyggda och inrymmer kontorsbyggnad och två höglager och den tredje fastigheten har en lagerbyggnad som även kan fungera för produktion.
På den ena fastigheten finns även ett kallager. Fastigheterna som ingår i beståndet är Norrtälje Skärsta 1:181 & 1:182 samt 1:214. Alla ytor är uthyrda på längre hyreskontrakt.
För mer information, kontakta ansvarig mäklare, Claes Du Rietz på 018-60 60 02.

Omgivning

Omgivning/natur:

Hallstavik är en tätort i norra delen av Norrtälje kommun, Stockholms län, Uppland, cirka 41 km nordnordväst om Norrtälje, och cirka 61 km ostnordost om Uppsala, belägen där Skeboån mynnar i Edeboviken, mitt i Roslagen.
Här finns bla Coop, apotek, restauranger, sporthall mm.

Kommunikationer

Riksväg 76 passerar strax väster om Hallstavik. Busstrafik finns genom SL och UL i form av SL:s linje 639 till Stockholm (Tekniska högskolan), UL:s linje 805 till Uppsala, SL:s linje 641 till Norrtälje, SL:s linje 643 till Älmsta och UL:s linje 857 till Östhammar via Hargshamn.

Övrigt

Byggnad:Fastigheterna 1:181 & 1:182

Byggnadstyp: Industri

Byggår: 1973

Beskrivning: Grund: platta på mark
Stomme: stål
Bjälklag: stål
Fasad: plåt
Fönster: 2-glas
Tak: plåt
Renoveringar:
2024-08 Installation av ny ventilationsanläggning på Skärsta 1:181
2024-03 Installation ny belysning gång mellan 1:181 - 1:182
2023-10 Anpassningar brandskydd, installation branddörr m.m.
2023-07 Ny port till tvätthall
2022-12 Renovering omklädningsrum
2022-11 Nytt wifi hela lagret
2022-09 Installation solceller på samtliga tre fastigheter, årlig produktion ca 386,000kWh
2022-07 Ny ledbelysning hela lagret
2022-06 Installation luftvärmepumpar kontoret (kyla/värme)
2022-03 Renovering/ombyggnad kontor - nya golv, dörrar, ytskikt, kök
2021-09 Installation laddboxar

Byggnaden på fastigheten 1;181 består av en kontorsbyggnad i två plan som är sammanbyggd med två höglagerbyggnader. På fastigheten 1:182 är det en enplans industribyggnad som inrymmer produktions- och lagerytor. Byggnaderna på de båda fastigheterna är sammanbyggda. Det finns även ett kallager på tomten (1:181).
Fördelningen av ytorna är:
Kontor - 550 kvm
Lager - 2 667 kvm
Produktion - 1960 kvm
Övriga ytor ca 305 kvm.

Uppvärmning, kylning och ventilation
Uppvärmning: fjärrvärme
Kyla: luftvärmeväxlare på kontoret
Ventilation: mekanisk ventilation

Vatten och avloppstyp
Kommunalt vatten och avlopp

Byggnad:Fastigheten 1:214

Byggnadstyp: Industri

Byggår: 1989

Beskrivning: Grund: platta på mark
Stomme: stål
Bjälklag: stål
Fasad: plåt
Fönster: 2-glas
Tak: plåt
Renoveringar:
2022-09 Installation solceller på samtliga tre fastigheter, årlig produktion ca 386,000kWh
2022-07 Ny ledbelysning hela lagret
2022-11 Värmeväxlare Skärsta 1:214

Byggnaden om 1000 kvm som brukas som lager eller produktion.

Uppvärmning, kylning och ventilation
Uppvärmning: fjärrvärme
Kyla: Luftvärmeväxlare
Ventilation: mekanisk ventilation

Vatten och avloppstyp
Kommunalt vatten och avlopp

Driftskostnad:

752 500 /år

Pris:

32 500 000

Hyresintäkter:

3 785 000 /år

Kontakta Annonsör

Claes Rietz

Claes Rietz