Pulpetgatan 28
Hyllie, Malmö, 300 - 600 m2
Vista - En plats där ert företag vill vara Vista är en kontorsfastighet där funktionalitet möter premiumkvalitet och strategiskt läge....
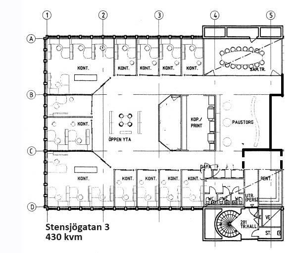
Kontor, 430 m2, Malmö, Hyllie
Hyra: Kontakta annonsören
Ljust kontor med stora fönster på bra läge. Lokalen kan anpassas i storlek efter verksamheten, från ca 400kvm upp till helt våningsplan på runt 1000 kvm. Lokalen består av flertalet kontorsrum med samt mötesrum och större öppna ytor. Stora glaspartier som ger ljus till alla delar i lokalen.
Ta steget mot en framgångsrik omlokalisering genom att kontakta Martin Rosén idag för mer information eller för att boka en visning.
Närhet till Bellevueparken samt Ärtholmens koloniområde samt Stadionparken.
Företag i närheten:Bellevuegårdsbiblioteket, Bellevueskolan, Hyllie stadsdelsförvaltning, Stensjögatan LSS, Stadion cykelverkstad.
Parkeringsmöjligheter/garage:Gatuparkering samt flera garage finns i närheten.
Lokalen ligger i nära anslutning till busshållsplats och är dessutom är belägen nära Lorensborgsgatan som leder ut till Ringvägarna.
Gångavstånd till både Ica och Lidl. I området finns flertal restauranger.
Korttidskontrakt
Kontrakttyp:Förstahandskontrakt
Tillträde:Enligt överenskommelse