Mäster Johansgatan 6

Kontor, 230 m2, Malmö, Malmö CBD

Hyra: Kontakta annonsören

Fin kontorslokal mitt i centrala Malmö!
Fin kontorslokal mitt i centrala Malmö!
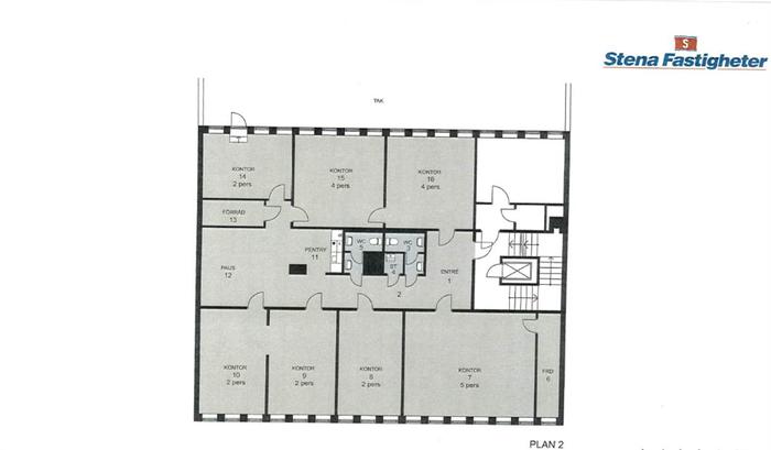
Lokalen är i fint skick och passar perfekt för dig som söker öppna arbetsytor, mötesrum samt gemensamhetsytor och konferensrum.
Kvarteret
Mäster Johansgatan bjuder på ett utmärkt cityläge med närhet till Lilla Torg, restauranger, caféer och kollektivtrafik.
Här har du direkt access till ett brett och spännande utbud av trendiga restauranger, exklusiva butiker, charmiga hotell och moderna konferensanläggningar. All tänkbar service finns runt hörnet, vilket gör detta till en perfekt plats för både nytta och nöje.

Medan Malmö växer och utvecklas i alla riktningar, förblir detta kvarter stadens själ och centrum. Här möts historisk charm och modern innovation i en harmonisk mix som skapar en unik atmosfär med karaktär och personlighet.

Fastigheten är dessutom framtidssäkrad med bland annat snabb fiberanslutning och digitala låsanordningar - vilket är en självklar fördel för ditt företag.

Välkommen till en plats där stadens puls möter moderna möjligheter - mitt i Malmö!

Kommunikationer
På bara några minuters promenad är du framme vid Malmö Centralstation - platsen där hela regionens puls möts. Här hoppar du smidigt på tåget, stads- eller länsbussen eller flygbussen, oavsett vart du ska. Tågen till Danmark går ofta - var tionde minut under rusningstid - och på ungefär en halvtimme trillar du av tåget mitt i Köpenhamn. För dig som pendlar med kollektivtrafik är det svårt att hitta ett bättre, mer bekvämt och levande läge.
Tillträde:

Enligt överenskommelse

Kontakta Annonsör

Ensar Gigovic

Ensar Gigovic