Dokument

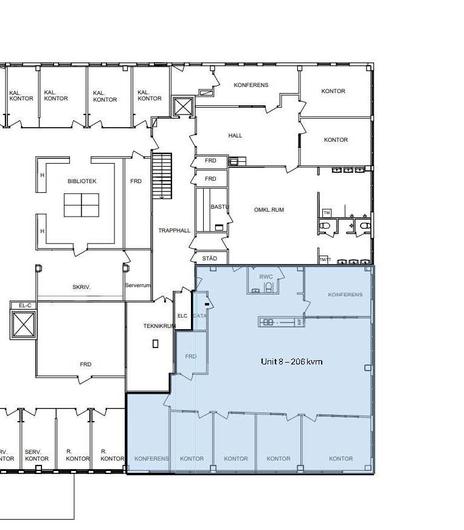
Planritning - Spillepengshagen 3 - Plan 2, Unit 8

Lundavägen 140

Kontor, 206 m2, Malmö, Kirseberg

Hyra: Kontakta annonsören

Renoverad kontorslokal med fräscha faciliteter

Här erbjuds möjlighet att hyra en flexibel kontorslokal i gott skick på plan två. Planlösningen består av öppet kontorslandskap med möjlighet till 4-6 kontorsplatser, fyra kontorsrum samt konferensrum med plats för 8-10 personer. Faciliteter finns i form av kök/pentry med anknytning till det öppna landskapet samt WC med dusch. Lokalen är utrustad med energibesparande LED-belysning och har genomgått en ytskiktsrenovering 2023, vilket gör den inflyttningsbar omgående. 

Byggnaden ligger med fri access utmed Ågatan och det finns goda möjligheter till parkering i anslutning till lokalen. Laddstolpar finns och ett elbilsladdningsprojekt är planerat under 2024, vilket kommer resultera i ytterligare laddstolpar. 

Fastigheten är belägen i Sege industriområde med närhet till Arlöv,  cirka 5 kilometer norr om centrala Malmö. Läget är optimalt ur logistiksynpunkt med direkt anslutning till E6/E20 och nära anslutning till Inre Ringvägen, E22 samt Västkustvägen. Området präglas av lättindustri, B2B-handel och erbjuder ett enklare serviceutbud av butiker samt lunchrestauranger. Det finns goda kollektivtrafikförbindelser med buss till centrala Malmö.

Omgivning

Företag i närheten:

Best Transport, NetonNet, Axfood Sverige, ProBike och StrongPoint Labels

Parkeringsmöjligheter/garage:

Fri parkering

Skyltläge:

Bra exponering av skyltläge utmed Ågatan

Vägbeskrivning:

Direkt anslutning till Inre Ringvägen samt nära anslutning till E6/E20 och E22

Planlösning

Fastighetsbeteckning:

Spillepengshagen 3

Byggår:

1964

Renoveringsår:

2023

Våningsplan:

2 av 2

Planlösning:

Se planritning bland bilder/PDF.

Kommunikationer

Goda kollektivtrafikförbindelser med buss till centrala Malmö

Service

Närservice:

Enklare serviceutbud av butiker och lunchrestauranger

Övrigt

Takhöjd:

2,6 m

Lokalen kan nås via:

Trapphus med hiss

Hiss:

Ja

Kontraktlängd:

Förhandlingsbart

Kontrakttyp:

Förstahandskontrakt

Tillträde:

Omgående.

Kontakta Annonsör

Viktor Noring

Viktor Noring