Norra Vallgatan 64
Malmö CBD, Malmö, 431 m2
Unika kontorslokaler med charm i anrika Skånepalatset! Söker du en kontorslokal med både charm och funktionalitet på ett centralt läge...
Dokument
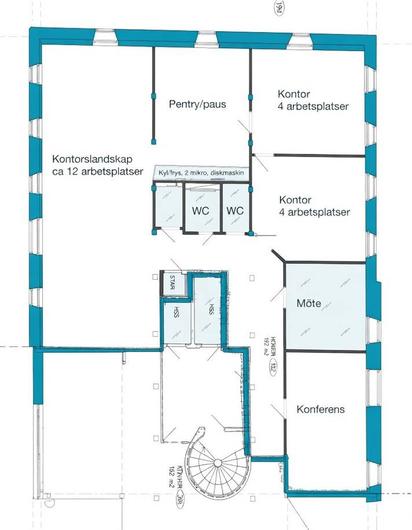
ritningKontor, 182 m2, Malmö, Malmö CBD
Hyra: 2 637 /m²/år
Sankt Jörgen 20
Byggår:1850
Våningsplan:4 av 5
All tänkbar service i absolut närhet
Fjärrvärme
Ventilation:Mekanisk frånluft samt air condition
Hiss:Ja
Utgångshyra kr/m2/år:2637