Kalendegatan 25

Kontor, 126 m2, Malmö, Malmö City

Placera ert nästa kontor i historisk miljö i Flensburgska Magasinet i hjärtat av Malmö.Nu finns möjlighet att flytta in i detta unika kontor beläget på femte våningen i Flensburgska Magasinet. Här finns den rätta känslan - Modernt men där historien gör sig påmind genom exempelvis synliga takbjälkar från 1800-talets mitt.

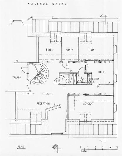
Lokalen om ca 126 kvm fördelar sig över 4 kontorsrum, reception/lounge, kök/pentry samt 2 st WC.

Parkeringsplats finns att hyra till på gården. Dubbelparkering, dvs två bilar får plats efter varandra i samma ruta.

Tillträde 1 november 2025 eller enligt ök.

Planlösning

Fastighetsbeteckning:

Sankt Jörgen 20

Byggår:

1800

Våningsplan:

5 av 5

Service

Närservice:

All tänkbar service finns i direkt närhet

Övrigt

Ventilation:

Mekanisk från luft samt A/C

Hiss:

Ja

Kontakta Annonsör

Nils Holmquist

Nils Holmquist