Dokument

Ritning - Hanö 1 - Unit 4.pdf

Hanögatan 2

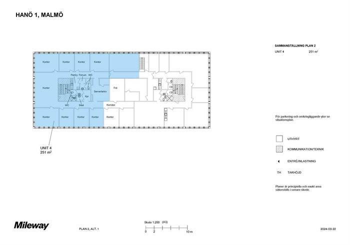
Kontor/Övrigt, 251 m2, Malmö, Östra Hamnen

Hyra: Kontakta annonsören

Ljus och modern kontorslokal med flexibla ytor - nära Malmö centrum

Välkommen till denna ljusa och moderna kontorslokal om 251 kvm påplan två, som erbjuder en effektiv och flexibel planlösning.

Lokalen i korthet:


  • Modernt skick och luftig design:Stora glaspartier som ger ettgeneröst ljusinsläppoch en trivsam arbetsmiljö.

  • Fräscha faciliteter:Nyrenoverat och utökat kök/pentry, WC samt separatakonferensrumför både små och stora möten.

  • Flexibilitet:Lokalerna kan anpassas efter din verksamhets specifika behov.

Smidigt läge och tillgång:


  • Parkeringsmöjligheter:Gott om parkeringsplatser precis utanför fastigheten, med möjlighet att installeraladdstolpar.

  • Lättillgängligt:Enkel access direkt frånVästkustvägen, perfekt för företag som söker ett centralt och smidigt läge.

Området - Östra Hamnen

Fastigheten är belägen i detväletablerade industriområdet Östra Hamnen, endast3 km norr om centrala Malmö. Området kännetecknas av:


  • Optimala transportförbindelser:Närhet tillInre Ringvägen,E6/E20ochE22, vilket gör området idealiskt ur ett logistiskt perspektiv.

  • Praktiskt serviceutbud:Närhet till lunchrestauranger och handel i området.

  • Goda kollektivtrafikmöjligheter:Bussar till centrala Malmö finns tillgängliga.

Varmt välkommen att kontakta oss för mer information eller för att boka en visning - vi hjälper dig att hitta den lösning som passar din verksamhet bäst!

Omgivning

Företag i närheten:

Cargobike of Sweden, INR Försäljning Sverige AB, Bluebox.se, Exakta Print AB och Bring

Parkeringsmöjligheter/garage:

Parkering på fastigheten, goda förutsättningar för att installera laddstolpar för elbilsladdning

Vägbeskrivning:

Nära anslutning till Inre Ringvägen, E6/E20 och E22

Planlösning

Fastighetsbeteckning:

Hanö 1

Byggår:

1968

Renoveringsår:

2011

Våningsplan:

2 av 3

Planlösning:

Se bilder/PDF.

Kommunikationer

Goda kollektivtrafikförbindelser med buss till centrala Malmö

Service

Närservice:

Enklare serviceutbud av handel och lunchrestauranger i närområdet

Övrigt

Lokalen kan nås via:

Trapphus med hiss

Hiss:

Ja

Kontraktlängd:

Förhandlingsbart

Kontrakttyp:

Förstahandskontrakt

Tillträde:

Omgående

Kontakta Annonsör

Viktor Noring

Viktor Noring