Dokument

Höjdmätaren 1_Plan 1.pdf
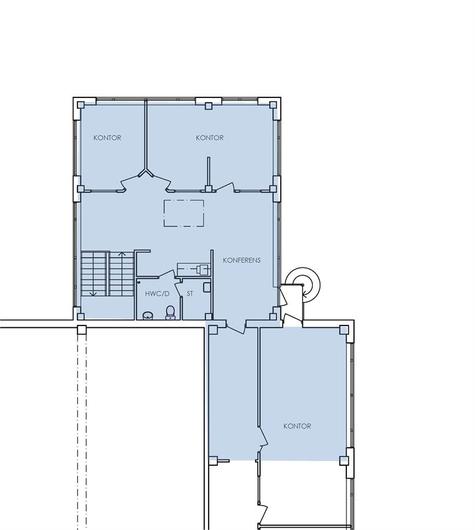
Höjdmätaren 1_Plan 2.pdf

Flygledaregatan 5

Industri/Kontor/Lager, 205 m2, Malmö, Bulltofta

Hyra: Kontakta annonsören

Kombinerad lager- och kontorslokal i fint skick finns att hyra i Bulltofta

Nu finns möjlighet att hyra enflexibel och representativ kombilokal om totalt 205 kvm, fördelad på79 kvm lageroch126 kvm kontor. Lokalen passar utmärkt för verksamheter som söker en effektiv kombination av lager, service och kontor.

Lagerytan i markplanharöppen planlösningoch nås viaegen markport, vilket ger smidig in- och utlastning samt god tillgänglighet.Kontorsdelen om 126 kvmär belägen på plan två och nås via en interntrappa. Här erbjudsmoderna och ljusa kontorsytormed generösa glaspartier som skapar en luftig och professionell arbetsmiljö. Planlösningen består av kontorsrum i varierande storlekar, mötesrum samtpentry/kök, städförråd, dusch och WC.

Fastigheten harfri access mot Flygledaregatan/Höjdrodergatanoch det finnsgoda parkeringsmöjligheter i direkt anslutningtill lokalen.

Område

Bulltofta industriområde ligger 5 kilometer nordost om centrala Malmö och är ett av de största och mest expansiva företagsområden i Malmö präglat av lätt industri, lager- och logistikverksamheter samt viss handel. Området ligger strategiskt placerat i direkt anslutning till Inre Ringvägen som leder vidare till E6/E20, E22 och E65 på ett par minuter. Enklare serviceutbud av lunchrestauranger och viss handel finns att tillgå i närområdet. Det finns goda kollektivtrafikförbindelser med buss till centrala Malmö.

Omgivning

Omgivning/natur:

Närhet till Bulltofta rekreationsområde med stora grönområden

Företag i närheten:

XXXLutz, Ahlsell, Swedol, Audi och Volkswagen

Parkeringsmöjligheter/garage:

Möjlighet att teckna tilläggsavtal för parkering i anslutning till lokalen

Skyltläge:

Bra exponering av skyltläge mot Höjdrodergatan/Flygledaregatan

Vägbeskrivning:

Direkt anslutning till Inre Ringvägen med anslutning från E6/E20, E22 och E65

Planlösning

Fastighetsbeteckning:

Höjdmätaren 1

Byggår:

1990

Renoveringsår:

2015

Planlösning:

Se bilder/PDF.

Kommunikationer

Goda kollektivtrafikförbindelser med buss till centrala Malmö, busshållsplats precis utanför fastigheten

Service

Närservice:

Enklare serviceutbud lunchrestauranger och viss handel i närområdet

Övrigt

Lokalen kan nås via:

Egen entré och markport

Kontraktlängd:

Förhandlingsbart

Kontrakttyp:

Förstahandskontrakt

Tillträde:

Omgående

Kontakta Annonsör

Hannah Reeder

Hannah Reeder