Dokument

Höjdmätaren 1_Planritning_Plan 1.pdf

Flygledaregatan 5

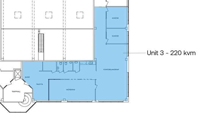
Kontor/Övrigt, 220 m2, Malmö, Bulltofta

Hyra: Kontakta annonsören

Nyrenoverad och modern kontorslokal i Bulltofta - 220 kvm i toppskick!

Nu har ni möjlighet att hyra en stilren och högkvalitativ kontorslokal i ett av Malmös mest dynamiska företagsområden.
Denna nyrenoverade kontorslokal om220 kvm, belägen på plan två, erbjuder en perfekt balans mellan öppna arbetsytor, separata kontorsrum och mötesrum - en flexibel lösning för företag med höga krav på både funktion och estetik.

Renoverad för att imponera:


  • Nyrenoverad 2022med moderna textilmattor och målade väggar som skapar en fräsch och inbjudande miljö.

  • Fullt utrustat kök/pentrymed uppgraderade vitvaror, perfekt för personalens trivsel.

  • Bekväma faciliteter sompausyta och WC, allt designat för att möta era behov.

Strategiskt läge med smidig tillgång:
Lokalen är strategiskt placerad iBulltofta industriområde, med enkel access från Flygledaregatan ochgoda parkeringsmöjligheterprecis utanför entrén. Detta är den ideala arbetsplatsen för företag som värdesätter tillgänglighet och en bekväm arbetsmiljö.

Bulltofta industriområde - Ett expansivt företagscentrum:


  • Perfekt läge:Endast 5 km nordost om Malmö centrum, med direkt anslutning till Inre Ringvägen som snabbt leder vidare till E6/E20, E22 och E65.

  • Etablerat område:Området präglas av lätt industri, lager- och logistikverksamhet samt viss handel.

  • Service i närheten:Lunchrestauranger och handel finns tillgängligt inom kort avstånd.

  • Goda kommunikationer:Smidig kollektivtrafik med buss till centrala Malmö.

Kontakta oss redan idag för mer information eller för att boka en visning. Denna moderna och flexibla kontorslokal är redo att bli er nästa arbetsplats!

Omgivning

Omgivning/natur:

Närhet till Bulltofta rekreationsområde med stora grönområden

Företag i närheten:

XXXLutz, Ahlsell, Swedol, Audi och Volkswagen

Parkeringsmöjligheter/garage:

Goda parkeringsmöjligheter precis utanför entrén

Skyltläge:

Bra exponering av skyltläge mot Flygledaregatan

Vägbeskrivning:

Direkt anslutning till Inre Ringvägen med anslutning från E6/E20, E22 och E65

Planlösning

Fastighetsbeteckning:

Höjdmätaren 1

Byggår:

1990

Renoveringsår:

2022

Våningsplan:

2 av 2

Planlösning:

Se bilder/PDF.

Kommunikationer

Goda kollektivtrafikförbindelser med buss till centrala Malmö

Service

Närservice:

Enklare serviceutbud lunchrestauranger och viss handel i närområdet

Övrigt

Lokalen kan nås via:

Gemensamt trapphus med hiss

Hiss:

Ja

Kontraktlängd:

Förhandlingsbart

Kontrakttyp:

Förstahandskontrakt

Tillträde:

Enligt överenskommelse

Kontakta Annonsör

Hannah Reeder

Hannah Reeder