Dokument

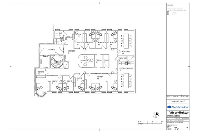
Planritning_235kvm_ plan 4

Engelbrektsgatan 15

Kontor/Övrigt, 235 m2, Malmö, Centrum

Hyra: 1850 kr/kvm/år

Prisvärt kontor i centrala Malmö

Nu har ni möjlighet att hyra ett kontor i centrala Malmö till en förmånlig hyra. Kontoret erbjuder idag en blandad planlösning med både enskilda rum, kontorslandskap och mötesrum. Då den använts för mottagning idag finns i anslutning till entrén en liten väntyta för besökare. Självklart kan kontoret byggas om ifall nuvarande inte överensstämmer med ert företags behov.

Lägesmässigt kan detta inte bli smidigare. Kontoret ligger precis runt hörnet från Gustav Adolfs Torg där alla bussförbindelser finns tillgängliga. Men för den som är bilburen finns det även ett garage i fastighetens källare.

Det är dessvärre inte möjlighet att ha en icke momsad verksamhet här.

Varmt välkommen att kontakta mig för mer information och en visning!

Omgivning

Gamla Väster i Malmö ligger i stadskärnan precis mellan gågatan och den vackra parken Kungsparken. Här har man både stadens puls och rogivande grönområden precis runt hörnan.

Kommunikationer

Hit kommer man enkelt både med buss, tåg, ciytunneln eller bil. Gustav Adolfs Torg med stadens alla busslinjer ligger precis runt hörnet. Kommer man via Centralstationen eller den nya citytunneln tar promenaden genom stan endast ett par minuter. Bilister parkerar enklast i garaget som ligger i fastighetens källare och med hiss rakt upp till våningsplanet, här går det bra att köpa månadskort för parkering.

Service

Hit kommer man enkelt både med buss, tåg, ciytunneln eller bil. Gustav Adolfs Torg med stadens alla busslinjer ligger precis runt hörnet. Kommer man via Centralstationen eller den nya citytunneln tar promenaden genom stan endast ett par minuter. Bilister parkerar enklast i garaget som ligger i fastighetens källare och med hiss rakt upp till våningsplanet, här går det bra att köpa månadskort för parkering.

Kontakta Annonsör

Malin Henriksson

Malin Henriksson