Einar Hansens esplanad 23

Kontor, 123 m2, Malmö, Västra Hamnen

Hyra: Kontakta annonsören

Kontorslokal i Västra Hamnen
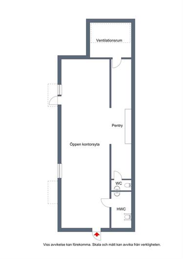
Denna kontorslokal om 123 kvm är belägen i populära Västra Hamnen, med en attraktiv närhet till både havet och centrala Malmö. Lokalen är utrustad med WC och HWC samt ett pentry som är förberett för användning av mikrovågsugn, dock utan spis och ugn. Byggnaden, som är uppförd i en stilren funkisarkitektur, inrymmer totalt 55 lägenheter samt denna kontorslokal på bottenplan.

Kommunikationerna till Västra Hamnen är smidiga, med busslinjer 2 och 3 som tar dig dit på ett enkelt sätt. Att cykla från Malmö city är också ett bekvämt alternativ, och resan tar ungefär 10 minuter.

Fastigheten är helt rökfri, vilket innebär att rökning inte är tillåten varken i lokalen, i miljörummet eller utomhus på fastighetens område. Den som ingår avtal för lokalen ansvarar för att upprätthålla detta och säkerställa att anställda och besökare följer rökförbudet både i och runt lokalen.

Kontakta oss gärna för mer information!

Omgivning

Omgivning/natur:

Beläget i en av Malmös mest eftertraktade stadsdelar, erbjuder denna lokal närhet till både hav och stadens puls. I området finns restauranger, caféer, butiker och promenadstråk längs havet.

Parkeringsmöjligheter/garage:

Parkering finns i området.

Planlösning

Fastighetsbeteckning:

Sjöporten 2

Byggår:

2019

Kommunikationer

Kommunikationerna till Västra Hamnen är smidiga, med busslinjer 2 och 3 som tar dig dit på ett enkelt sätt. Att cykla från Malmö city är också ett bekvämt alternativ, och resan tar ungefär 10 minuter.

Service

Närservice:

I närområdet finns det mataffär, systembolag, restauranger, skolor, tandläkare, frisörer.

Övrigt

Tillträde:

Enligt överenskommelse

Kontakta Annonsör

Lokalgruppen

Lokalgruppen