Monbijougatan 17A
Möllevången, Malmö, 172 m2
Charmig källarlokal med industrikänsla i anrika Trikåfabriken! Charmig källarlokal med industrikänsla i anrika Trikåfabriken! Industricharm möter modern design - Nu...
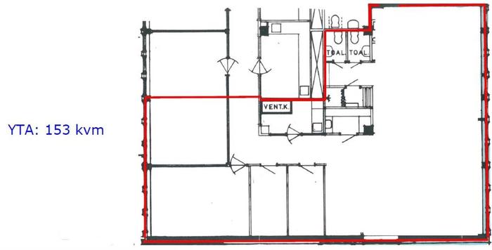
Kontor, 153 m2, Malmö, Möllevången
Hyra: Kontakta annonsören
Enligt ö.k.