Montörgatan 2
Kumla, 6742 m2
Asfalterad markyta om upp till 6 742 kvm i Kumla - strategiskt läge nära E20 Nu finns möjlighet att hyra...
Dokument
Planlösning_Tranisistorn 2.pdfKontor/Övrigt, 488 - 2916 m2, Kumla
Hyra: Kontakta annonsören
Nu finns möjligheten att hyra ljusa och renoverade kontorslokaler i en välskött kontors- och lagerfastighet strax norr om centrala Kumla. Lokalerna erbjuder stor flexibilitet, anpassningsbara för olika typer av verksamheter. Tack vare planlösningen, lokalernas storlek och tillgången till flera gemensamhetsytor passar fastigheten utmärkt för utbildningsverksamhet, såsom skola, vuxenutbildning eller kursverksamhet.
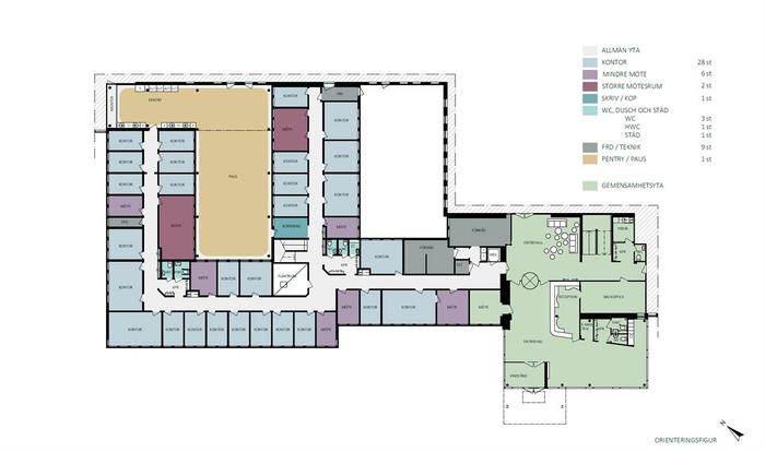
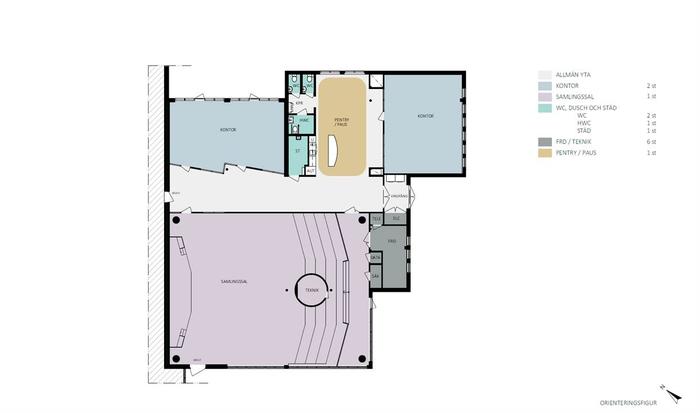
Lokalerna håller en god standard med moderna ytskikt och en genomtänkt planlösning som kombinerar öppna kontorslandskap med enskilda kontorsrum, mötes- och konferensrum. Här finns även trevliga personalytor såsom kök/pentry, pausrum och flera WC. Lokalerna är fördelade på två plan, vilket möjliggör tydlig struktur och god intern logistik.
Välkomnande entré och smidig tillgång
Fastigheten har en rymlig och inbjudande huvudentré med reception, vilket skapar ett trevligt första intryck för både personal och besökare. Fri parkering finns i direkt anslutning till byggnaden, vilket underlättar vardagen.
Lättillgängligt läge med närhet till service
Fylsta ligger endast 17 km från Örebro och erbjuder ett strategiskt läge med direkt närhet till E20 och riksväg 51. Området har ett enklare serviceutbud med butiker och lunchrestauranger, och det finns goda kollektivtrafikförbindelser med buss till Kumla och Örebro.
Sammanfattning:
Lokaler om 488-2 916 kvm
Flexibel planlösning: öppet landskap och kontorsrum
Passar även som skola eller utbildningsverksamhet
Rymlig entréhall med reception
Personalutrymmen: kök/pentry, pausrum och WC
Fri parkering vid fastigheten
Nära E20 och goda kommunikationer
Kontakta oss för mer information eller för att boka en visning - vi hjälper gärna till att hitta en lösning som passar just er verksamhet.
Papa Padel AB, Lidl, Kavat Outlet, PostNord, Bring, Ericsson och Loxy Sweden AB
Parkeringsmöjligheter/garage:Fri parkering
Skyltläge:Bra exponering av skyltläge mot Montörgatan och gamla E3
Vägbeskrivning:Intill gamla E3 med anslutning till E20 och riksväg 52
Transistorn 2
Byggår:2000
Renoveringsår:2015
Våningsplan:1 av 2
Planlösning:Se planritning bland bilder/PDF.
Goda kollektivtrafikförbindelser till centrala Kumla och Örebro
Enklare serviceutbud av butiker och lunchrestauranger finns i närområdet
Det finns även en idrottslokal om 1 023 kvm att hyra.
Lokalen kan nås via:Gemensam entréhall med reception
Hiss:Ja
Kontraktlängd:Förhandlingsbart
Kontrakttyp:Förstahandskontrakt
Tillträde:Omgående