Lasarettsboulevarden 33 G

Kontor, 276 m2, Kristianstad, Hemhult

Hyra: 900 kr/kvm/år

Uthyrning av vårdlokaler i Kristianstad- skräddarsydda möjligheter i grönskande omgivning

Välkommen till våra attraktiva vårdlokaler i Kristianstad- en plats där verksamheter inom vård och omsorg kan utvecklas i takt med omgivningens lugn och inspiration. Här erbjuds flexibla ytor som kan anpassas efter just dina behov, oavsett om du söker lokal för behandling, mottagning eller omsorgsverksamhet.

Lokalerna är belägna i ett område som präglas av grönska, nära till parkering och promenadstråk- perfekt för både personal och besökare. Med goda kommunikationer och parkeringsmöjligheter är det enkelt att ta sig hit, oavsett om du kommer med bil, cykel eller kollektivtrafik.

Vi erbjuder möjligheten att påverka lokalens ytskikt och utformning, så att du kan skapa en miljö som speglar din verksamhets identitet. Tillsammans med våra fastighetsspecialister skräddarsyr vi en lösning som passar just dig-från golv till tak.

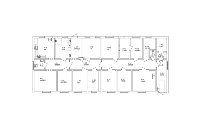
Denna lokal på 276 kvadratmeter ligger i en lugn och grön miljö i östra Kristianstad. Fastigheten, uppförd på 1970-talet, består av enplanshus i gult tegel och omges av natursköna omgivningar.

Kristianstads centrum är beläget på gångavstånd, vilket gör det enkelt att nå stadens service och butiker.

Grannskapet inkluderar förskolor och kommunala verksamheter, vilket bidrar till en aktiv och trivsam omgivning. Fastigheten erbjuder även parkeringsplatser för både personal och besökare. Denna kontorslokal är idealisk för verksamheter som söker en flexibel och anpassningsbar arbetsmiljö. Kom och upptäck fördelarna med att ha din verksamhet i Hemhult!

Varmt välkommen att lämna en intresseanmälan!

Kontakta Annonsör

Christel Zaar

Christel Zaar