Lodgatan 12

Butik/Industri/Kontor, 641 m2, Knivsta

Hyra: 1 480 /m²/år

Lageryta med tillhörande kontor i Ar-Knivsta
Nyproducerad lokal om 641 kvm. entréplanet plan består av hall/lager med oljat betonggolv om ca 402 kvm med högt i tak och portar för lastning. Här finns också en entré för eventuell kundmottagning, omklädningsrum med WC och dusch, en extra WC och ett personalrum med köksdel. På det övre planet som nås från en trappa vid kundmottagningen finns det flera rum för kontor eller extra lager samt utgång till ett entresol.
Affärsområdet Ar mellan E4:ans påfart och Knivsta samhälle är ett område i en expanderande fas med ett strategiskt läge nära E4:ans påfart!

För mer information och visning kontakta mäklaren!

Omgivning

Företag i närheten:

Det finns bra service vid bensinstationen med minilivs samt lunch restaurang vid hotellet intill, sedan finns det ett generöst utbud i Knivsta centrum några km bort.

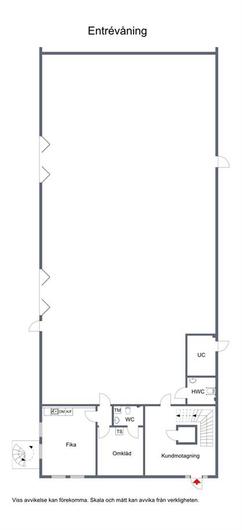
Planlösning

Planlösning:

Lokalen om 641 kvm har i markplanet en stor öppen lageryta eller lättare verkstadsyta med två portar. Här finns också en entré till en kundmottagning, två toaletter och sedan ett personalutrymme med lunchrum med kök och plats för sällskapsmöbler. Från hallen går en trappa upp till övre planet med kontorsytor eller extra lager. Här finns även utgång till ett entresol med öppen yta ner till hallen.
Ytorna är fördelade enligt följande:
Kontor 179 kvm
Entresol 60 kvm
Lager 402 kvm

Fastigheten byggdes och stod klart hösten 2018. Huset är försett med bergvärme och bergkyla samt solceller på tak.

Kommunikationer

I Knivstas expanderande industriområde Ar med närhet till både Stockholm och Uppsala. Nära till av- och påfart från E4.

Övrigt

Utgångshyra kr/m2/år:

1480

Kontakta Annonsör

Sandra Johansson

Sandra Johansson