Hyvelgatan 16

Kontor/Lager, 300 m2, Knivsta

Hyra: 1 300 /m²/år

Lager och kontor i AR- Knivsta!
Nu finns chansen att driva din verksamhet i företagsområdet Ar- Knivsta. Här erbjuds en lager- och kontorslokal om 300 kvm med lastkaj. Lokalen inrymmer ca 120 kvm kontor och ca 180 kvm lager. På Hyvelgatan 16 har du fördelen med ett riktigt bra och strategiskt läge med den direkta närheten till E4:ans påfart som tar dig till Uppsala, Arlanda och Stockholm på kort tid.

Omgivning

Omgivning/natur:

Fastigheten är belägen i företagsområdet Ar i Knivsta. Ar är ett expanderande företagsområde beläget alldeles vi E4.and påfart.

Företag i närheten:

Närmast finns ett hotell med lunchrestaurang och en bensinstation med minilivs. Mycket generöst utbud av service i Knivsta.

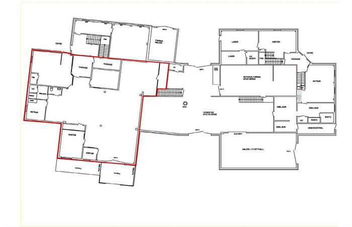
Planlösning

Planlösning:

Lokalen om 300 kvm är belägen i markplan med en stor välkomnande entré , en större yta för lager produktion. 120 kvm är kontor och 180kvm är lager. Lokalen inrymmer fem rum som kan brukas som kontor eller mindre lager. Två mindre förråd finns. Det finns också ett personalrum med pentry samt två WC och en dusch. Lokalen har en lastkaj på baksidan av byggnaden.

Kommunikationer

Goda kommunikationer med närhet till E4:an samt bra tåg- och busskommunikationer från Knivsta centrum, buss avgår från närliggande gata in till Knivsta. Gång- och cykelvägar in till Knivsta.

Övrigt

Utgångshyra kr/m2/år:

1300

Kontakta Annonsör

Pernilla Persson

Pernilla Persson