Dokument

A40.1-110 (20).pdf

Franska vägen 8

Kontor/Övrigt, 142 - 497 m2, Kalmar

Hyra: Kontakta annonsören

Kontor i centralt beläget industriområde, allt i markplan.

Välkommen till denna praktiska kontorslokal på marknivå, strategiskt belägen nära E22 med tillgängliga parkeringsplatser. Med en yta på allt från 142 kvm till 1 157 kvm erbjuder lokalen en flexibel lösning för olika verksamheter.

Entrén är funktionell och öppnar upp för möjligheten att skapa en reception eller en butik, beroende på dina behov. Lokalens utformning är klassisk och ger möjlighet till anpassning för att matcha specifika krav.

Här kan du skapa olika arbetsmiljöer, från öppna landskap till privata kontor för koncentrerat arbete. För större möten eller evenemang kan utrymmet omvandlas till konferensrum eller en praktisk matsal.

Denna kontorslokal är anpassningsbar för att möta dina unika behov. Oavsett om ditt företag expanderar eller är etablerat, finns här möjlighet att skapa en funktionell arbetsplats. Kontakta oss för att boka en visning och upptäcka hur detta utrymme kan anpassas för att passa just din verksamhet.

Omgivning

Företag i närheten:

Fastigheten ligger på Franska vägen 8 i ett centralt beläget industriområde i Kalmar. Omgivningen utgörs i huvudsak av handels- och industrilokaler.

Parkeringsmöjligheter/garage:

Mycket bra parkeringsmöjligheter i anslutning till lokalen.

Skyltläge:

Bra skyltmöjlighet

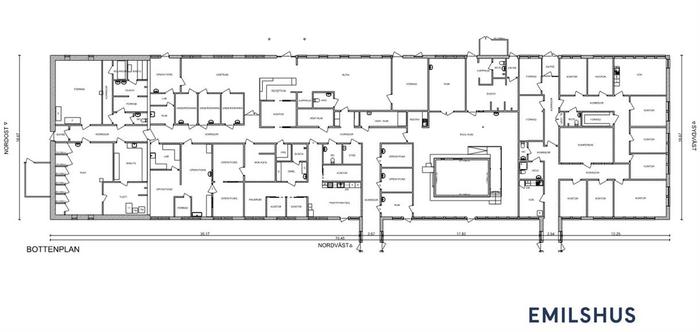
Planlösning

Fastighetsbeteckning:

Plåten 5

Våningsplan:

1 av 1

Kommunikationer

Gångavstånd till kollektivtrafiken och gott om möjlighet för parkering av cyklar och bilar.

Service

Närservice:

Med sitt centrala läge i berga industriområde finns all service i närheten.

Övrigt

Övrigt:

Emilshus är ett fastighetsbolag med småländska rötter som bygger nära relationer med sina hyresgäster genom lokal närvaro och engagemang på orterna där bolaget finns. Verksamheten präglas av långsiktighet, stabila kassaflöden och lönsam tillväxt. Sedan 2018 har Emilshus etablerat sig som ett starkt fastighetsbolag i södra Sverige med cirka 8,9 miljarder kronor i fastighetsvärde per 31 december 2024. Verksamheten bedrivs för närvarande i sju förvaltningsområden; Halmstad, Jönköping, Kalmar, Linköping, Vetlanda, Värnamo och Växjö med förvaltningskontor i Kalmar, Jönköping, Vetlanda och Växjö.

Uppvärmning:

Fjärrvärme

Lokalen kan nås via:

Flera entréer i markplan

Ventilation:

Mekanisk till- och från luft

Kontraktlängd:

Förhandlingsbart

Kontrakttyp:

Förstahandskontrakt

Tillträde:

Enligt överenskommelse

Kontakta Annonsör

Magnus Mabler

Magnus Mabler