Kindgrensgatan 15
Jönköping, 535 m2
Välkomna till Kindgrensgatan 15, där vi nu har ett hyresledigt kontor om 535 kvm. Lokalen har även ett utmärkt skyltläge...
Dokument
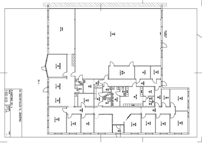
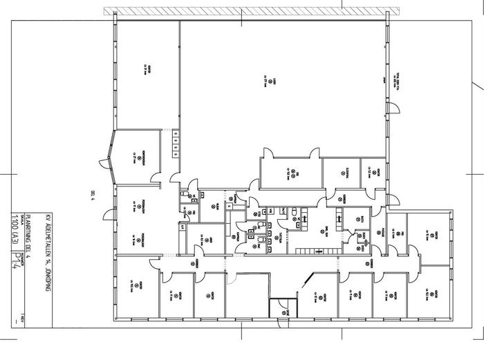
Ädelmetallen 14, P1-4.pdfIndustri/Kontor/Lager, 655 m2, Jönköping
Hyra: Kontakta annonsören
Kombinerad lager- och kontorslokal om totalt 655 kvm.
Kontoret om ca 384 kvm har både enskilda kontorsrum och delvis öppen planlösning, samt konferens, kök och allmänytor.
Lagerdelen om ca 271 kvm har en takhöjd om ca 3,5 m. Det finns 1 stycken markport med måtten B:2.48 m x H: 3.78.
Fastigheten, som ligger på en inhägnad gård, har en tillhörande skärmtak om ca 84 kvm som går att tilläggshyra.
Fastigheten är utrustad med fibernät.
Parkeringsplatser finns på fastighetens område.
2020
Fastigheten ligger lättillgänglig från E4:an, ca 3-4 minuters bilresa från Jönköpings centrum och centralstation. Buss trafikerar sträckan. Det strategiska läget vid E4:an har gjort Jönköping till ett logistikcentrum. Och lika enkelt som det är att ta sig hit bilvägen är det att flyga eller åka tåg. Axamo flygplats ligger 1,5 mil utanför stadens centrum och hit går ett antal dagliga direktflyg från Stockholm, Karlstad, Oslo och Frankfurt. I kommunen finns till och med färjetrafik för den som så önskar!
Stadsdelen Ljungarum i Jönköping är ett citynära industri- och handelsområde. Här har du nära till ett brett serviceutbud. Ljungarum industriområde sträcker sig på båda sidor om E4:an och rymmer byggvaruhus, köpcentrum och handel. Du har också nära till naturreservatet Strömsberg.
Emilshus erbjuder lokalt baserad förvaltning. Vi finns alltid nära tillhands när det behövs och delar gärna med oss av vårt breda kunnande inom lokal- och fastighetsfrågor. Vi har lokal närvaro och engagemang för din verksamhet. Tillsammans hittar vi kreativa lösningar för att göra din arbetsplats så bra som möjligt. Du som kund är alltid i vårt fokus.
Tillträde:Enligt överenskommelse