Datorgatan 1

Kontor, 144 m2, Jönköping, Huskvarna

Hyra: Kontakta annonsören

Kontorslokal på bästa läge i centrala Huskvarna

Upptäck denna moderna kontorslokal om 144 kvm i bottenplan i det eftertraktade läget på Positronen 1 i centrala Huskvarna. Denna imponerande byggnad, med sex våningsplan ovan mark samt en källare, erbjuder en magnifik utsikt över Vättern och en optimal skyltplats mot E4.

Här får du inte bara en modern och rymlig arbetsmiljö, utan även tillgång till generösa parkeringsmöjligheter och smidiga kommunikationsytor. 

Ta chansen att uppgradera din företagsadress till Datorgatan 1 . Kontakta oss idag för mer information och boka en visning!

Omgivning

Omgivning/natur:

Vacker utsikt över Vättern

Företag i närheten:

I fastighetens omgivning finns kommersiella fastigheter, service för näringslivet och hyreshus. Inom gångavstånd finns centrala Huskvarna med ett bra utbud av service och kollektiva kommunikationsmedel. Några minuter i bil nås Jönköping, med bland annat tre stora handelscentrum, och Elmia

Parkeringsmöjligheter/garage:

Gott om parkeringsmöjligheter

Skyltläge:

Bästa skyltläget längs med E4:an

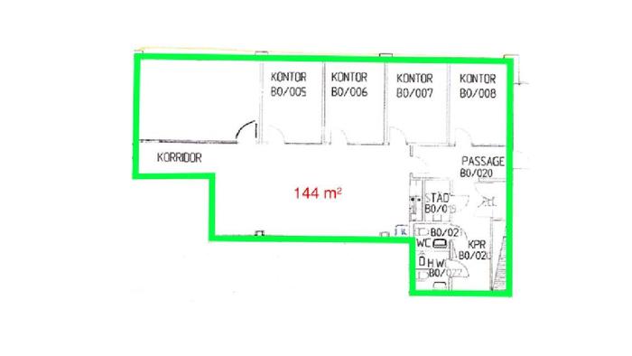
Planlösning

Fastighetsbeteckning:

Positronen 1

Planlösning:

Trevlig kontorslokal om tre kontor och konferensrum.

Kommunikationer

Hit kommer du enkelt med bil, buss eller cykel

Service

Närservice:

Nära Huskvarna centrum med flertalet restauranger butiker och matbutiker

Övrigt

Övrigt:

Emilshus erbjuder lokalt baserad förvaltning. Vi finns alltid nära tillhands när det behövs och delar gärna med oss av vårt breda kunnande inom lokal- och fastighetsfrågor. Vi har lokal närvaro och engagemang för din verksamhet. Tillsammans hittar vi kreativa lösningar för att göra din arbetsplats så bra som möjligt. Du som kund är alltid i vårt fokus.

Kontraktlängd:

Förhandlingsbart

Kontrakttyp:

Förstahandskontrakt

Tillträde:

Omgående.

Kontakta Annonsör

Ulrik Rosklint

Ulrik Rosklint