Dokument

Planskiss 330 kvm - Jonsereds Fabriker.pdf

William Gibsons väg 1B

Butik/Industri/Kontor, 330 m2, Göteborg

Hyra: Kontakta annonsören

Vill du och ditt företag utvecklas i en av Göteborgs absolut vackraste miljöer?
I Jonsereds Fabriker erbjuder vi en kreativ och lugn arbetsmiljö!

Välkommen till Jonsereds Fabriker!

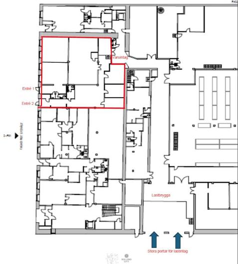
Nu har vi en lokal om totalt ca 330 kvm för uthyrning. Lokalen ligger i markplan på ett av områdets attraktivaste lägen. Har stora fina fönster mot huvudentré, samt en varuingång i bakre delen med tillgång till lastbrygga.

Lokalen är i 1 plan med stora möjligheter till anpassning efter din verksamhet. Hit kommer du med bill åtta minuter från centrala Göteborg och 10 min med pendel.

Fastigheten erbjuder en kreativ och lugn arbetsmiljö med natur, fina promenadstråk och Säveån inpå knuten.

 Välkommen förbi på en personlig visning!

Omgivning

Omgivning/natur:

Trevliga promenadstråk i naturskön omgivning med Säveån som rinner längs med fastigheten.

Företag i närheten:

Brödfabriken, Poppels Bryggeri, Kroppsmedjan, MCK,
Icebug, Lillegrisen, Irse, Guiderevision, Trig mfl.

Parkeringsmöjligheter/garage:

Finns goda parkeringsmöjligheter på området.

Vägbeskrivning:

Från Göteborg: E20 mot Stockholm, kör förbi Partille och sväng av vid Jonsered, avfart 82. Kör igenom samhället och efter ca 200 m så ser du Jonsereds Fabriker på vänster sida.

Planlösning

Fastighetsbeteckning:

Jonsered 1:12

Renoveringsår:

2021

Kommunikationer

Jonsered Station ligger endast 50 m från fastigheten. Tågen går var 30:de minut, varje kvart under rusningstid, från kl. 05 på morgonen till 00:40 på nätterna. Resan till Göteborg C tar 12 minuter.Busshållplats, med busslinjerna GUL Express och 519, ligger 100 m från fastigheten. Bil från centrala Göteborg tar ca. 8 minuter via E20. Närhet till Partille, Lerum och Göteborg.

Service

Närservice:

I närområdet finns Brödfabriken samt restaurang Lille Grisen som serverar lunch, och du når Allum på 7 min med bil.
Jonsereds trädgårdar ligger på promenadavstånd vilket är fantastiskt vackert under sommarhalvåret.

Övrigt

Lokalen kan nås via:

E20

Kontraktlängd:

Förhandlingsbart

Kontrakttyp:

Förstahandskontrakt

Tillträde:

Enligt överenskommelse

Kontakta Annonsör

Eva Näslund

Eva Näslund