Dokument

Ritning 112 kvm Fjällbo(1)

Vagnmakaregatan 1 B

Kontor, 60 - 204 m2, Göteborg, Öster

Hyra: Kontakta annonsören

Luftigt kontor i fin fastighet
Lokalen är belägen på 1 trappa och lokalen nås vi det gemensamma trapphuset. Huset har genomgått en större restauering där orginaldetaljer har sparats från byggåret 1928. Takhöjden har bevarats genom att installera synlig ventilation vilket gör att kontoret känns ljust och rymligt. Möjlighet finns att dela av lokalen i två mindre kontor.

Planlösningen erbjuder ett kontor med rumsindelning samt pentry toalett.
Strategiskt bra läge nära Göteborg men utanför tullarna. Möjlighet till parkering i anslutning till fastigheten.

Omgivning

Omgivning/natur:

Fastigheten ligger i det väl etablerade verksamhetsområdet Utby nära E20 och ca 6 km öster om centrala Göteborg.

I närområdet finns det populära utflyktsmålet Bergsjön med badsjö och vandringsleder.

Det direkta närområdet präglas av lager-, verkstad och kontorsverksamhet med en blandning av många olika verksamheter.

Parkeringsmöjligheter/garage:

Goda parkeringsmöjligheter inom området.

Möjlighet finns att hyra p-platser för er verksamhet.

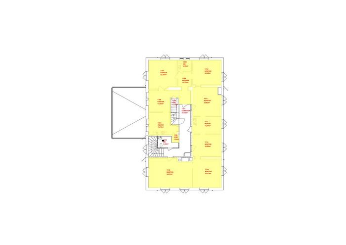
Planlösning

Fastighetsbeteckning:

2209 Göteborg Utby 753:474

Byggår:

1928

Renoveringsår:

2025

Våningsplan:

1

Planlösning:

Planlösning:
Denna lokalen om 112 kvm har två möjliga ingångar från trapphuset samt dubbla pentryn vilket gör att den kan delas upp i två delar. Lokalen ebjuder fyra kontorsrum.

Kommunikationer

Bra kommunikationer till centrala Göteborg som nås på ca 20 min med buss.

Lättillgängligt även med bil med närheten till E20.

Service

Närservice:

Ett flertal lunchrestauranger finns på gångavstånd och bara 5 min bort finns köpcentrumet Allum med ca 86 butiker och restauranger.

Övrigt

Kontraktlängd:

Förhandlingsbart

Kontrakttyp:

Förstahandskontrakt

Tillträde:

Enligt överenskommelse

Kontakta Annonsör

Fredrik Bengtsson

Fredrik Bengtsson