Vagnmakaregatan 1 B

Kontor/Kontorshotell, 153 m2, Göteborg, Öster

Hyra: Kontakta annonsören

Flexibelt kontor med möjlighet till lager i huset
Detta ljusa kontor ligger en trappa upp och nås via det gemensamma trapphuset. Byggnaden, som är från 1928, har genomgått en omfattande renovering där originaldetaljer har bevarats. Lokalen har stora fönster i två väderstreck, kontor i fil med bröstade glaspartier ut mot ljus korridor och en samlingsyta. Planlösningen är flexibel och kan anpassas efter verksamhetens behov. I huset finns lagerytor att tillgå om behov finns.

Omgivning

Omgivning/natur:

Fastigheten ligger i det väl etablerade verksamhetsområdet Utby nära E20 och cirka 6 km öster om centrala Göteborg. I närområdet finns Bergsjön med badsjö och vandringsleder. Det direkta närområdet präglas av lager-, verkstad- och kontorsverksamhet med en blandning av olika verksamheter.

Parkeringsmöjligheter/garage:

Goda parkeringsmöjligheter inom området. Möjlighet att hyra p-platser för verksamheten.

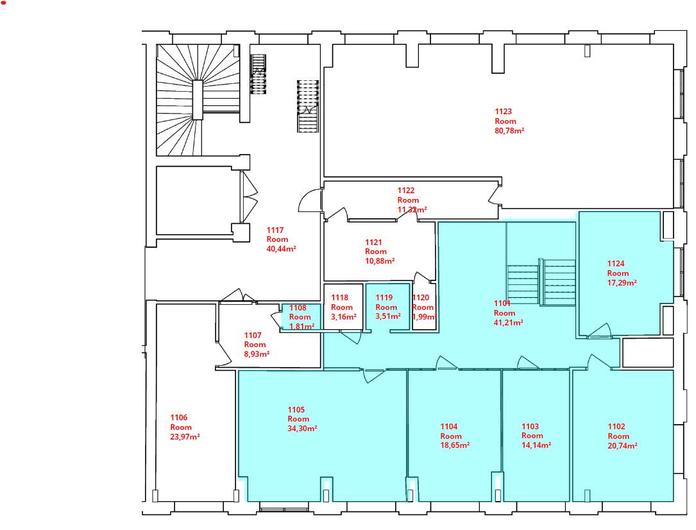
Planlösning

Fastighetsbeteckning:

2209 Göteborg Utby 753:474

Byggår:

1928

Renoveringsår:

1982

Våningsplan:

1

Planlösning:

Lokalen har fönster i två vädersträck, kontor i fil med bröstade glaspartier ut mot ljus korridor och en samlingsyta. Planlösningen är flexibel. Från entrén leder en trappa upp till en öppen yta.

Kommunikationer

Bra kommunikationer till centrala Göteborg som nås på ca 20 min med buss.

Lättillgängligt även med bil med närheten till E20.

Service

Närservice:

Flera lunchrestauranger finns på gångavstånd och köpcentrumet Allum med cirka 86 butiker och restauranger ligger bara 5 minuter bort.

Övrigt

Kontraktlängd:

Förhandlingsbart

Kontrakttyp:

Förstahandskontrakt

Tillträde:

Enligt överenskommelse. Omgående

Kontakta Annonsör

Fredrik Bengtsson

Fredrik Bengtsson