Tunnbindaregatan 9

Kontor, 426 m2, Göteborg, Centrala Hisingen

Hyra: 1 000 kr/m²/år

Delvis nyrenoverad kontorslokal om 426 kvm i två plan med egen entré. Ljus, flexibel yta i attraktivt läge på Hisingen.

Egen entré och två våningsplan ger denna lokal en tydlig och avskild kontorsmiljö.

Lokalen omfattar totalt 426 kvm och erbjuder ljusa, rymliga ytor med generös takhöjd och stora fönster. Delar av lokalen är nyrenoverade medan övriga ytor är i gott skick.

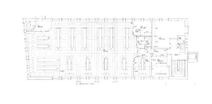
Planlösningen består av öppna kontorsytor i kombination med mindre rum, vilket skapar flexibilitet för olika typer av verksamheter. Lokalen lämpar sig bäst för kontor eller annan verksamhet med låg ljudnivå och begränsat kundflöde.

Omgivning

Skyltläge:

Möjlighet till skyltning finns.

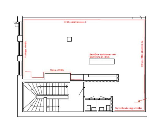
Planlösning

Planlösning:

Egen entré i bottenplan.

Plan 2: ca 91 kvm med kök/lunchrum samt två WC.

Plan 3: ca 335 kvm med öppna kontorsytor, mindre rum samt en WC.

Kommunikationer

Goda kommunikationer med enkel tillgång till både spårvagn och buss.

Övrigt

Uppvärmning:

Fjärrvärme

Lokalen kan nås via:

Lättillgängligt läge på Hisingen med närhet till Lundbyleden och Hisingsleden.

Ventilation:

FTX

Kontrakttyp:

Förstahandskontrakt

Tillträde:

Tillgängligt

Utgångshyra kr/m2/år:

1000

Kontakta Annonsör

Tobias Falk

Tobias Falk