Sörredsbacken 20

Kontor, 1300 m2, Göteborg, Västra Hisingen

Hyra: Kontakta hyresvärd för mer information

Kontorslokal i centralt läge i Sörredsområdet

Denna ljusa och flexibla lokal på totalt1302 kvm, fördelad över två våningsplan, erbjuderstora öppna ytorsom lämpar sig utmärkt förstörre kontorsverksamheter. De generösa landskapen möjliggör eneffektiv och trivsam arbetsmiljö, med goda möjligheter att anpassa ytan efter verksamhetens behov.

Lokalen är belägen iSörred, mednära anslutning till Volvo och andra stora industriverksamheter. Området har goda kommunikationer och enkel tillgång till viktiga transportleder, vilket gör det till en strategisk plats för företag med anknytning till fordonsindustrin och dess leverantörsnätverk.

Perfekt för företag som sökermoderna, öppna och välplanerade kontorsytori en attraktiv och expansiv företagsmiljö.

Omgivning

Omgivning/natur:

Fastigheten är belägen i ett industriområde i Torslanda med närhet till både hav och natur. På kort avstånd finns skogspartier, gångstråk och kustmiljöer som ger goda möjligheter till rekreation utanför arbetstid.

Företag i närheten:

Fastigheten är en del av ett kraftfullt och framtidsinriktat industrikluster i Torslanda, med grannar som Volvo Cars, Polestar och Novo Energy. Inom området finns även utvecklingsprojekt som Mobility Innovation Destination Torslanda och Sörred Logistikpark.

Parkeringsmöjligheter/garage:

På fastigheten finns parkeringsmöjligheter för både anställda och besökare, men antalet platser är begränsat.

Skyltläge:

Fastigheten har inget utpräglat skyltläge mot större väg. Skyltning kan placeras vid entré och fasad för att underlätta orientering för kunder, besökare och transporter.

Vägbeskrivning:

Från söder (t.ex. centrala Göteborg):
Kör E6 mot Torslanda/Hisings Backa. Ta av vid avfart mot väg 155 mot Volvo City/Sörred. Följ Sörredsvägen (väg 155), sväng in på Sörredsplatsen och följ skyltning till Sörredsbacken. Lokalen ligger strax därpå på höger sida.

Från norr (t.ex. Torslanda, ön):
Från Torslanda centrum, ta väg 155 söderut mot Göteborg. Sväng sedan in på Sörredsbacken via Sörredsplatsen, följ skyltningen direkt till lokalen.

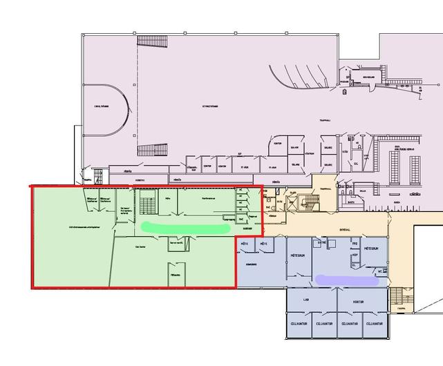
Planlösning

Fastighetsbeteckning:

Sörred 8:5

Planlösning:

Kontorslokal om 1 302 kvm i centralt läge i Sörred.

Kommunikationer

Fastigheten har goda kommunikationsmöjligheter med närhet till väg 155 (Sörredsvägen) som ansluter direkt till E6/E20 och vidare mot Göteborgs centrum samt hamnen. Bussförbindelser finns via linjer mot Torslanda och centrala Göteborg, med hållplatser längs Sörredsvägen. Närmaste spårvagns- och tågförbindelser nås via centrala Hisingen och Göteborgs centralstation. Landvetter flygplats nås på cirka 35 minuter med bil.

Service

Närservice:

I närområdet finns lunchrestauranger och service kopplat till de många företagen i Torslanda. På kort avstånd nås även Amhult centrum som erbjuder mataffärer, apotek, restauranger och annan närservice.

Övrigt

Övrigt:

Lokalen erbjuder möjlighet till anpassning efter verksamhetens behov och ligger i ett område med närhet till både service, restauranger och rekreativa grönområden. Kombinationen av strategiskt läge och trivsam omgivning skapar en attraktiv helhet för både anställda och besökare.

Lokalen kan nås via:

Fastigheten nås enkelt via Sörredsvägen med god tillgänglighet för tung trafik. Lokalerna har portar i markplan som möjliggör smidig in- och utlastning. Lastbrygga kan anordnas vid behov.

Miljöcertifiering:

BREEAM

Den här certifieringen är världens mest använda. Breeam används för befintliga och nybyggda kommersiella byggnader. 2013 kom en svensk version som utgår från svensk lagstiftning, svenska metoder och arbetssätt. Breeam är en heltäckande certifiering med många indikatorer. Här görs bedömningar inom projektledning, energianvändning, inomhusklimat, vattenhushållning, avfallshantering, markanvändning, påverkan på närmiljön, byggmaterial och föroreningar samt byggnadens läge i förhållande till allmänna kommunikationsmedel.

Källa

Tillträde:

Enligt överenskommelse

Hyresinformation:

Kontakta hyresvärd för mer information

Kontakta Annonsör

Lukas Broberg

Lukas Broberg