Dokument

Ruskvädersgatan 14 Plan 4 kontor

Ruskvädersgatan 14

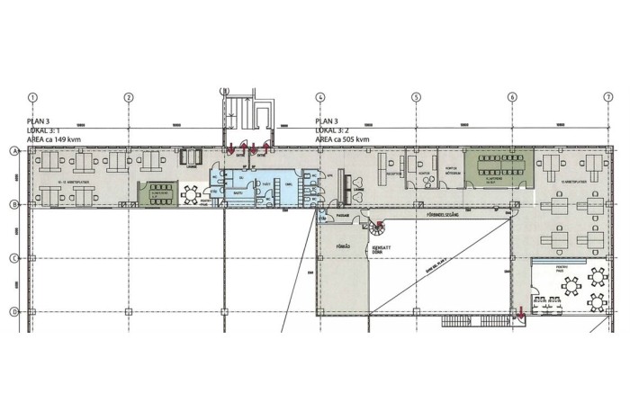
Kontor, 300 - 505 m2, Göteborg

Hyra: 1300 kr/kvm/år

Letar ni kontor i välskött fastighet med en fastighetsägare som bryr sig?

Är ni trötta på en oengagerad hyresvärd och letar efter nytt läge - titta hit!

Våra hyresgäster rekommenderar gärna lokalerna och området till andra! Här finns fyra välskötta fastighet i ett litet trevligt kvarter med restaurang och närhet till busshållplatsen Vädermotet. Även lätt att ta sig hit med bil via Älvsborsbron eller via Backa och sedan vidare ut mot Hamnen, Torslanda m.m.

Ljus kontorslokal med blandad planlösning, både öppet effektivt landskap kompletterat med enskilda kontorsrum. Lokalen är tillgänglig och inflyttningsklar. Se bilderna och även exempelbilder på kontorslokaler i grannlokalen för exempel på blivande skick. Vi anpassar den efter era önskemål efter överenskommelse. Gott om parkeringsplatser finns i direkt närhet utanför.

Lokalen kan delas för att få ett mindre kontor om det krävs.

Välkommen att höra av er så berättar vi gärna mer!

Kommunikationer

Flera direktbussar från City stannar vid hållplatsen Värdermotet i närheten av fastigheten.

Kontakta Annonsör

Ulf Birk

Ulf Birk