Pilegårdsgatan 4

Butik/Kontor, 160 m2, Göteborg, Centrala Hisingen

Hyra: Kontakta annonsören

Lokal på Pilegårdsgatan 4 i Eriksberg
Lokal på Pilegårdsgatan 4 i Eriksberg
Välkommen till Pilegårdsgatan 4 - en flexibel och inbjudande lokal.

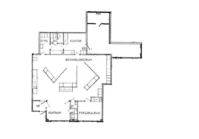
Upptäck denna rymliga lokal på 130 kvm, med möjlighet att utöka till 160 kvm, belägen i ett lugnt och fridfullt område i Göteborg. Tidigare använd som tandläkarklinik, är denna lokal nu redo att förvandlas till en vårdlokal eller ett kontor, beroende på dina behov.

En lokal med potential:

Med sin öppna planlösning och generösa utrymme erbjuder denna lokal en ljus och luftig atmosfär som är perfekt för att skapa en inspirerande arbetsmiljö. Oavsett om du planerar att starta en vårdverksamhet eller ett kontor, ger denna lokal dig flexibiliteten att anpassa den efter dina specifika behov.

Fördelar med lokalen:

Lugn och fridfull omgivning: Perfekt för verksamheter som värdesätter en rogivande miljö.

Flexibel planlösning: Anpassa utrymmet för att passa just din verksamhet.

Strategiskt läge: Beläget i ett attraktivt område med goda kommunikationsmöjligheter.

Hyresinformation:
Grundhyran är 1 000 kr/kvm per år exklusive moms. Tillträde sker enligt överenskommelse.

Vi välkomnar dig att kontakta oss för en visning och för att diskutera hur denna lokal kan bli den perfekta platsen för din verksamhet. För mer information om denna och andra liknande lokaler, besök gärna vår hemsida.

Fastigheten
Bostadsfastighet med studentboenden och en kommersiell lokal.

Med sin attraktiva belägenhet vid vattnet och närheten till grönområden skapar området en unik arbetsmiljö. Dessutom finns det utmärkta kommunikationer och ett fint affärsliv i området. Missa inte chansen att vara en del av Eriksbergs dynamiska företagsgemenskap.

Eriksberg
I Eriksberg har du närheten till havet och den fina strandpromenaden som går längs med Eriksbergskajen och den vackra Färjenäsparken.

Matbutiker, apotek och systembolag samt ett antal andra butiker ligger ett stenkast bort samlade vid handelsplatsen i Sannegården. Här ligger också en välsorterad Ica Kvantum, pizzeria och zoobutik.

Vill du njuta av restauranger ligger ett flertal längs med Eriksbergskajen med varierade menyer, allt från hamburgare till cafémat, pizza och modern nordisk mat. Åker du åt andra hållet hamnar du vid Kvilletorget och Kvillebäcken som har saluhall, restauranger och caféer.

Kommunikation
Från Eriksberg kan du åka till centrum med både buss och färja. Färjan går från Eriksbergskajen och bussen stannar inte långt bort. Det finns ett flertal att välja mellan, exempelvis buss 16 och 21.
Tillträde:

Enligt ök

Kontakta Annonsör

Ebba Hernqvist

Ebba Hernqvist