Dokument

Ritning blivande utseende plan 3 2025-08-13.pdf

Nya Tingstadsgatan 1

Kontor, 180 - 1000 m2, Göteborg, Hisings-Backa

Hyra: 1 700 kr/m²/år

Nyrenoverade kontor med otroligt skyltläge längs med E6. Fri parkering

Ett våningsplan som kan delas till kontor i olika storlekar! 

Ytorna är belägna på våning 3 trp med hiss.

Här kan du hyra ett våningsplan på 1000 kvm eller mindre ytor, se förslag nedan:

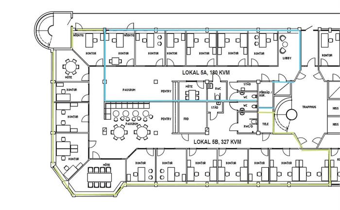
180 kvm fördelat på lite rum, nytt kök, mötesrum och 2 WC

327 kvm rumsindelat med nyrenoverade ytskikt och nytt kök och 2 WC 

Bilderna avser en nyrenoverad lokal i fastigheten som inspiration för övriga kontor.


Välkomna att kontakta oss för visning!

Omgivning

Omgivning/natur:

Nära Tingstadstunneln och påfart till E6an, 5 min till stan med bil.

Parkeringsmöjligheter/garage:

Fri parkering på fastigheten.

Skyltläge:

Perfekt skyltläge mot E6

Planlösning

Fastighetsbeteckning:

Backa 123:15

Byggår:

1985

Renoveringsår:

2025

Våningsplan:

3

Planlösning:

Ett våningsplan som kan hyras helt eller delas upp till 3 lokaler och renoveras.
Hela våningsplanet är ca 1000 kvm.
Föreslagen delning:
180 kvm nyrenoverad fördelat på 6 rum alt öppen planlösning med nytt kök och 2 WC
327 kvm, nyrenoverad rumsindelad alt öppet landskap med nytt kök och 2 WC
493 kvm rumsindelad renoverad med 3 WC

Fri parkering.

Kommunikationer

Busshållsplats precis vid huset samt hållplats (Balladgatan) för bl a stombuss 18 och 19 ca 300 m från fastigheten.

Service

Närservice:

Populär lunchrestaurang i huset.

Övrigt

Uppvärmning:

Fjärrvärme

Ventilation:

Mekanisk till- och från luft

Hiss:

Ja

Tillträde:

Enligt överenskommelse

Utgångshyra kr/m2/år:

1700

Kontakta Annonsör

Linda Neidert

Linda Neidert