Krokslätts fabriker 38

Kontor, 180 - 585 m2, Göteborg, Krokslätt

Hyra: Ej angiven

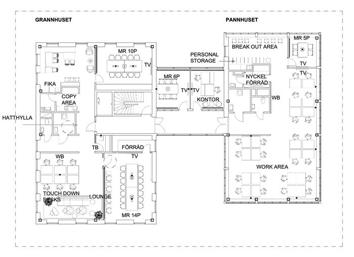
Ett väldigt charmigt kontor i Krokslätts fabriker blir snart tillgängligt för en ny hyresgäst. Kontoret ligger på de två planen längst upp i huset med en fantastisk utsikt och fint ljusinsläpp. Här trivs företag som är cirka 40 anställda. Fabrikerna är välbevarande exteriört men insidan har fått sig ett rejält lyft. Man har också bytt ut tekniska system och annat för att göra lokalerna energieffektiva. Det finns även möjlighet att hyra enbart en våning som är cirka 300 kvm.

Ett väldigt charmigt kontor i Krokslätts fabriker blir snart tillgängligt för en ny hyresgäst. Kontoret ligger på de två planen längst upp i huset med en fantastisk utsikt och fint ljusinsläpp. Här trivs företag som är cirka 40 anställda. Fabrikerna är välbevarande exteriört men insidan har fått sig ett rejält lyft. Man har också bytt ut tekniska system och annat för att göra lokalerna energieffektiva. Det finns även möjlighet att hyra enbart en våning är cirka 180 kvm/ 405 kvm.

I krokslätts fabriker har du närhet till natur samtidigt endast 2 hållplatser bort har du närhet till Mölndals centrum där det erbjuds ett stort utbud av restauranger och butiker.

Hållplatsen krokslätts fabriker ligger i närheten av fastigheten där du på några minuter kan ta dig till Mölndals centrum där det finns mycket bra kommunikation men även direkt vagn till Göteborgs stadskärna på cirka 10 minuter. E6an ligger i anslutningen med nära avfart.

Omgivning

I krokslätts fabriker har du närhet till natur samtidigt endast 2 hållplatser bort har du närhet till Mölndals centrum där det erbjuds ett stort utbud av restauranger och butiker.

Kommunikationer

Hållplatsen krokslätts fabriker ligger i närheten av fastigheten där du på några minuter kan ta dig till Mölndals centrum där det finns mycket bra kommunikation men även direkt vagn till Göteborgs stadskärna på cirka 10 minuter. E6an ligger i anslutningen med nära avfart.

Service

I närheten finns det parkeringshus samt några restauranger, två hållplatser bort ligger Mölndals centrum med massvis av butiker och restauranger.

Övrigt

Parkering

Nej

Skyltläge

Nej

Kontakta Annonsör

Rikard Reutherborg

Rikard Reutherborg