Fabriksstråket 1
Göteborg, 192 m2
Flexibel och trygg förvaring i Jonsered! Vi erbjuder lagerplatser i vårt bemannade lager i Jonsered, där där vår personal tar...
Kontor, 450 m2, Göteborg
Hyra: Kontakta annonsören
Välkommen till ett kontor med både historia och framtid i Jonsereds Fabriker
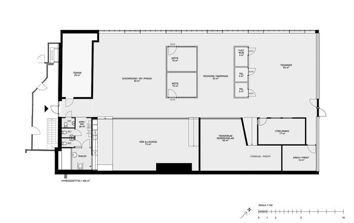
På 450 kvm erbjuds en genomtänkt och välplanerad kontorslokal i den anrika industrimiljön Jonsereds Fabriker, strax utanför Göteborg. Lokalen är inredd med stor omsorg och kombinerar den råa industrikänslan - med synliga betongtak, ventilationstrummor och pelare - med ljusa, moderna ytor som skapar en inspirerande och produktiv arbetsmiljö.
Öppna och ljusa arbetsytor
Kontoret rymmer flexibla arbetsplatser i öppna landskap med rikligt med dagsljus från stora fönsterpartier som vetter mot omgivande natur. Ergonomiska arbetsstolar, höj- och sänkbara skrivbord samt avskärmningar mellan arbetsplatserna ger både komfort och möjlighet till fokuserat arbete. Heltäckningsmatta i mörkblå ton bidrar till en dämpad ljudmiljö, medan dekorativa rislampor och växter skapar en varm och välkomnande känsla.
Mötesrum för alla behov
Lokalen erbjuder flera olika mötesrum anpassade för olika ändamål:
Sociala ytor och personalutrymmen
Hjärtat av kontoret är den generösa personal- och loungezonen. Här finns ett fullt utrustat kök med moderna vitvaror, mikrovågsugnar, kaffemaskin och stort kylskåp. Ett långbord i massivt trä med bänkar inbjuder till gemensamma luncher, medan loungemöblemang med soffor, fåtöljer och soffbord skapar en avslappnad miljö för pauser och informella samtal. Karaktärsfulla glödlampor och pendelarmaturer ger en mysig industriell atmosfär.
Aktivitet och avkoppling
Området erbjuder mycket aktiviteter och att gå en lunch promenad längs säveån och grönska livar upp och ger energi för sista timmarna av dagen.
Läget - Jonsereds Fabriker
Jonsereds Fabriker är en unik plats med rik industrihistoria, beläget vackert vid Säveån mellan Göteborg och Partille. Här samsas anrika tegelbyggnader med moderna verksamheter i en kreativ företagsmiljö. Området erbjuder god kommunikation till centrala Göteborg, gott om parkering samt närhet till naturen med promenad- och löpstråk. En arbetsplats med själ - där historia möter innovation.
Sammanfattning
Detta är kontoret för företaget som värdesätter en inspirerande arbetsmiljö, varierade arbetsytor och en stark identitet. Med sina 450 kvm rymmer lokalen allt som det moderna företaget behöver - fokuserade arbetsplatser, professionella mötesrum, sociala ytor och utrymme för kreativitet och rörelse.
2
Planlösning:Öppen planlösning med konferens och tystrum.
5 m
Uppvärmning:Fjärrvärme
Ventilation:FTX
Tillträde:Lokalen är tillgänglig omgående