J A Pripps Gata 2

Kontor, 524 m2, Göteborg, Askim-Frölunda-Högsbo

Hyra: Kontakta annonsören

Flexibla kontorsrum i Högsbo!
Flexibla kontorsrum i Högsbo!
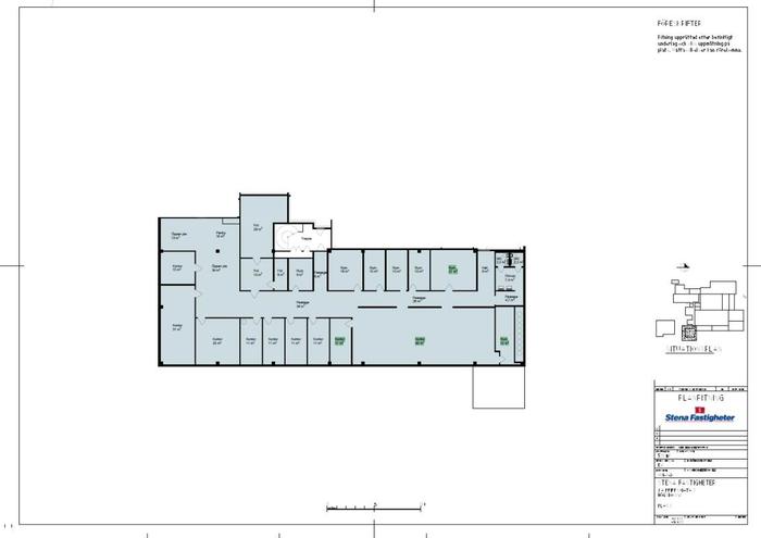
Välkommen till en ljus och rymlig kontorslokal på andra våningen med en total yta av 524 kvm. Här erbjuds cirka 15 kontorsrum i varierande storlekar, som kan hyras individuellt av olika företag. Detta ger en unik möjlighet för småföretag att etablera sig i en dynamisk arbetsmiljö.

Stora fönster fyller rummen med naturligt ljus och skapar en trivsam atmosfär. Lokalen är utrustad med ett pentry och två WC, vilket underlättar för både anställda och besökare. Den öppna planlösningen gör det enkelt att anpassa utrymmet efter specifika behov, med goda möjligheter att skapa en co-working miljö.

Faciliteter inkluderar möjligheten att installera laddstolpar för elbilar och gott om parkeringsplatser.

Fastigheten
Blåtomten, tidigare känd som Pripps-fastigheten, är en ikonisk del av Göteborgs industriella arv.

Omgivning och service
Blåtomten är omgiven av grönområden som erbjuder enkel tillgång till parker och rekreationsområden, perfekta för avkoppling och friluftsliv. Området har utmärkta kollektivtrafikförbindelser med närhet till både spårvagn och bussar, vilket gör det enkelt att nå Göteborgs centrum och andra delar av staden. Dess strategiska läge, med kort avstånd till stora transportleder och Göteborgs hamn, underlättar både pendling och logistik.

Servicen i området är omfattande, med ett brett utbud av butiker, restauranger och caféer som tillgodoser alla smaker och behov. Närheten till vårdcentraler och apotek ger enkel tillgång till hälso- och sjukvårdstjänster. Dessutom finns flera skolor och förskolor i närheten, vilket gör området idealiskt för familjer.

Kommunikation
Blåtomten i Högsbo är väl anslutet med kollektivtrafik, vilket gör det enkelt att ta sig runt i Göteborg. Flera busslinjer passerar området, inklusive linjerna 758, 82 och 95, som erbjuder frekventa avgångar och smidiga förbindelser till stadens centrum och andra stadsdelar. Dessa linjer gör det enkelt för både boende och besökare att nå viktiga knutpunkter som Marklandsgatan och Frölunda Torg.

För bilpendlare är området strategiskt beläget nära stora transportleder, vilket gör det lätt att nå Göteborgs hamn och andra viktiga destinationer.
Tillträde:

Enligt överenskommelse

Kontakta Annonsör

Ebba Hernqvist

Ebba Hernqvist