Kalkylvägen 3
Göteborg, 11 m2
Eget kontor och co-working i Mölnlycke företagspark - ett praktiskt läge mellan Göteborgs centrum och Landvetter Välkommen till Parea kontor...
Kontor, 489 m2, Göteborg
Hyra: Prisvärd lokal. Kontakta Joar för mer information.
Letar du efter ett modernt och kreativt kontor med utmärkta förbindelser i Göteborgsområdet? Välkommen till Göteborgsvägen 94.
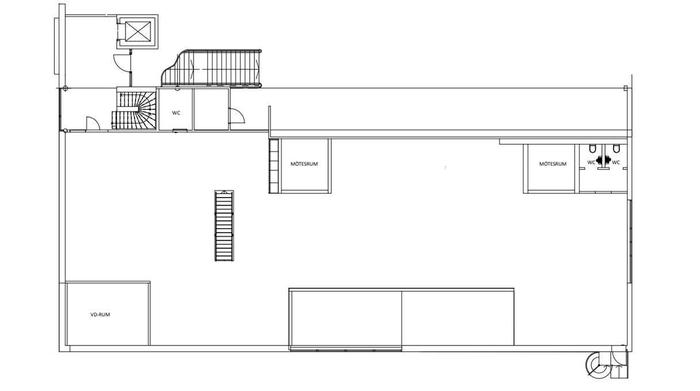
Lokalen ligger i en modern byggnad och erbjuder en kreativ öppen planlösning tillsammans med två mötesrum och ett separat kontor, vilket ger flexibilitet för olika arbetsstilar och behov.
Bekväma parkeringsplatser i fastighetens garage tillsammans med besöksparkering längs huset, gör det enkelt för både anställda och besökare att parkera. Dessutom ligger lokalen nära väg E6, vilket ger utmärkta förbindelser till och från utkanterna av Göteborg.
Kontakta oss idag för att boka en visning!
Swedbank som närmsta granne
Parkeringsmöjligheter/garage:Finns möjlighet att hyra platser i fastighetens parkeringsgarage tillsammans med besöksparkeringar på utsidan huset.
Vägbeskrivning:Nära krokslätts fabriker, Mölndalsvägen, Göteborgsvägen
Väldigt öppen planlösning med två mindre mötes/telefonrum och ett inglasat kontor i ena hörnet av lokalen.
ca 200 meter promenad från spårvagnshållplatsen "Krokslätts Fabriker" där både spårvagn 2 och 4 går till och från Korsvägen på 10 minuter.
Flera lunchställen inom promenadavstånd
Swedbank som närmsta granne.
Hiss:Ja
Kontraktlängd:Långtidskontrakt
Kontrakttyp:Förstahandskontrakt
Tillträde:Omgående
Hyresinformation:Prisvärd lokal. Kontakta Joar för mer information.