Dokument

Planlösning 30 kvm - Lilla Kontorshotellet plan 2.pdf

Fabriksstråket 9

Kontor/Kontorshotell, 30 m2, Göteborg

Hyra: Kontakta annonsören

Välkommen till Jonsereds Fabriker och vårt superfräscha kontorshotell i natursköna Jonsered. Lokalt café, restaurang och promenadstråk inpå knuten.

Ljust fint kontor med härligt ljusinsläpp om ca 28 kvm i vårt superfräscha kontorshotell.

Plats för flera arbetsplatser och tillgång till alla gemensamhetsytor och bekvämligheter kontorshotelletet erbjuder, såsom kök, konferensrum, dusch etc.

I närområdet finns bla restaurang Lilla Grisen, Brödfabrikens café, Poppels bryggeri, och trevliga promenadstråk.

Bra med parkeringsplatser i området och pendeltåget stannar alldeles intill.

Omgivning

Omgivning/natur:

Välkommen till Jonsereds Fabriker! Här kan du och ditt företag utvecklas i en vacker miljö, endast åtta minuters resväg från centrala Göteborg. Fastigheten erbjuder en kreativ och lugn arbetsmiljö med skogen och Säveån som närmaste grannar.

Parkeringsmöjligheter/garage:

Parkeringsplatser i området för hyresgäster och besökande.

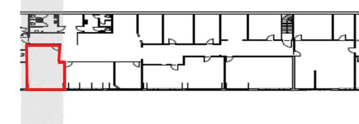
Planlösning

Fastighetsbeteckning:

Jonsered 1:2

Planlösning:

Fint kontor med härligt ljusinsläpp om ca 30 kvm i vårt superfräscha kontorshotell. Plats för flera arbetsplatser och tillgång till allt kontorshotellet har att erbjuda.
Belägen i natursköna Jonsereds Fabriker.

Kommunikationer

Pendelstation 3 min gångväg

Service

Närservice:

Café, restaurang och bryggeri i området.

Övrigt

Kontraktbeskr.:

Enl överenskommelse

I hyran ingår:

Skatt, el, moms

Kontakta Annonsör

Eva Näslund

Eva Näslund