Dokument

A1_ 05 Plan 3 Nytt utseende.pdf
A-40-1-100 VINDSVÅNING ÖVERSYN YTOR.pdf

Fabriksstråket 21

Butik/Kontor/Kontorshotell, 650 m2, Göteborg

Hyra: Kontakta annonsören

Unik vindsvåning i ett vackert läge med panorama fönster över säveån. Gammaldags fabrikskänsla med den modernaste anpassningen kan bli ert nya kontor.

Unik vindsvåning i ett vackert läge med panorama fönster över säveån. Gammaldags fabrikskänsla med den modernaste anpassningen kan bli ert nya kontor. Lokalerna är något helt utöver det vanliga och där du kan vara med och anpassa efter dina önskemål. Gammaldags fabrikskänsla parat med den senaste designen.

Området Jonsereds Fabriker erbjuder en helt unik miljö med närhet till Göteborg. Med bil tar det 8 minuter, pendeln som stannar strax utanför tar dig till GBG C på bara 12 min.

Service som hotell, bageri, gym, vacker natur och restauranger på området. 

Omgivning

Omgivning/natur:

Fastigheten och området erbjuder en kreativ och lugn arbetsmiljö med skogen och Säve ån som närmaste grannar.

Företag i närheten:

Poppels Bryggeri, Brödfabriken, Kroppsmedjan, Icebug, Lillegrisen, OneCake, Irse, Guiderevision, Trig

Parkeringsmöjligheter/garage:

Ja

Skyltläge:

Ja

Vägbeskrivning:

Från Göteborg: E20 mot Stockholm, kör förbi Partille och sväng av vid Jonsered, avfart 82. Fortsätt igenom samhället och efter ca 200 m så ser du Jonsereds Fabriker på vänster sida.

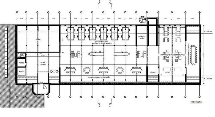
Planlösning

Fastighetsbeteckning:

Jonsered 1:12

Byggår:

1833

Renoveringsår:

2021

Våningsplan:

3 av 3

Planlösning:

Lilla fabriken är en av de mest intressanta projekten som återstår.
Gammaldags fabriksskänsla parat med den senaste designen skapar utrymmen för dig som letar efter det där extra. Stora fönster mot gaveln och takkupor med ljusinläpp. Hiss upp till planet.

Kommunikationer

Jonsered Station ligger endast 50 m från fastigheten. Tågen går var 30:de minut, samt varje kvart under rusningstid, från kl. 05 på morgonen till 00:40 på nätterna. Resan till Göteborg C tar 12 minuter.Busshållplats, med busslinjerna GUL Express och 519, ligger 100 m från fastigheten. Bil från centrala Göteborg tar ca. 8 minuter via E20. Närhet till Partille, Lerum och Göteborg.

Service

Närservice:

Jonsered/Partille C

Övrigt

Uppvärmning:

Fjärrvärme

Lokalen kan nås via:

E20, pendeltåg/buss.

Hiss:

Ja

Tillträde:

Enligt överenskommelse

Kontakta Annonsör

Eva Näslund

Eva Näslund