Dokument

Planritning - Mileway - Backa 21-13 Göteborg.pdf
Backa 21-13_Exportgatan 17_540-1100 kvm_Brochure.pdf

Exportgatan 17

Butik/Industri/Kontor, 548 m2, Göteborg, Backadal

Hyra: Kontakta annonsören

Toppmodern lokal i TradePoint 17 - optimal för lager, verkstad, handel och showroom

Välkommen tillTradePoint 17, en helt nyproducerad och flexibel lager- och verksamhetsfastighet iBacka- ett av Göteborgs mest etablerade lättindustriområden. Här erbjuds toppmoderna lokaler som lämpar sig perfekt förlager, verkstad/besiktning, handel (detalj- och fackhandel), B2B eller butik/showroom.

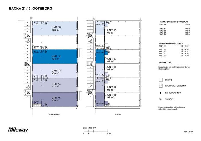
Här finns lediga enheter om cirka548 kvm, som vid behov kan kombineras för att skapa större sammanhängande ytor på upp till 1 100 kvm (minsta enhet är 542 kvm). Medtakhöjd upp till 9,8 meter, en egen markport per enhet ochgolvbärighet på 3 ton/kvm, är lokalerna anpassade för smidig logistik och hantering av tunga varor. Dessutom finns96 kvm kontorsyta på entresolplani varje enhet, med fräscha faciliteter i form av kök/pentry, omklädningsrum och WC. 

Toppmodern byggnad med miljöcertifiering och energibesparande LED-belysning- en hållbar och kostnadseffektiv lösning för din verksamhet.

Säkerhet och tillgänglighet:Byggnaden är belägen inom ettinhägnat områdemedgoda parkeringsmöjligheteroch tillgång tillelbilsladdningför både personal och besökare.

TradePoint 17 ligger i Backa,ett dynamiskt område känt för sin mix avhandel, logistik och tillverkning.Meddirektanslutning till E6 och Marieholmsförbindelsenär transportmöjligheterna utmärkta, och närheten till Stigs Center och Bäckebol köpcentrum ger tillgång till ett brett serviceutbud med butiker och restauranger. Området har dessutom goda kollektivtrafikförbindelser till centrala Göteborg.

Här finns alla förutsättningar för en modern och effektiv verksamhet - redo för omedelbar inflyttning!

Välkommen att kontakta oss för mer information eller för att boka en visning!

Omgivning

Omgivning/natur:

Backa är ett av Göteborgs mest etablerade lättindustriområde präglat av handel, logistik och tillverkning

Företag i närheten:

Beijer Byggmaterial, Ahlsell, Euromaster, PostNord och Dagab

Parkeringsmöjligheter/garage:

Parkering i anslutning till byggnaden

Skyltläge:

Bra exponering av skyltläge mot Exportgatan och E6

Vägbeskrivning:

Direkt anslutning till E6

Planlösning

Fastighetsbeteckning:

Backa 21:13

Byggår:

2024

Våningsplan:

1

Planlösning:

Ladda ner planlösning som högupplöst PDF eller se bland bilder.

Kommunikationer

Goda kollektivtrafikförbindelser med buss till centrala Göteborg

Service

Närservice:

Närhet till levande handelsplats kring Stigs Center och Bäckebol Köpcenter med ett brett serviceutbud av butiker, gym och restauranger

Övrigt

Takhöjd:

8,2 m

Lokalen kan nås via:

1 markport per enhet

Hiss:

Ja

Miljöcertifiering:

BREEAM

Den här certifieringen är världens mest använda. Breeam används för befintliga och nybyggda kommersiella byggnader. 2013 kom en svensk version som utgår från svensk lagstiftning, svenska metoder och arbetssätt. Breeam är en heltäckande certifiering med många indikatorer. Här görs bedömningar inom projektledning, energianvändning, inomhusklimat, vattenhushållning, avfallshantering, markanvändning, påverkan på närmiljön, byggmaterial och föroreningar samt byggnadens läge i förhållande till allmänna kommunikationsmedel.

Källa

Kontraktlängd:

Förhandlingsbart

Kontrakttyp:

Förstahandskontrakt

Tillträde:

Omgående

Kontakta Annonsör

Paul Garces

Paul Garces