Kontor,
348 m2,
Göteborg, Gårda
Mixat kontor med snabbt tillträde!
Nu har ni möjlighet att hyra en lokal som just genomgått en mindre renovering. Lokalen har bland annat ett nytt pentry med moderna vitvaror samt fräsch målning, vilket ger en ljus och trivsam arbetsmiljö.
Vi erbjuder snabbt tillträde och ser gärna en verksamhet som kan dra nytta av lokalens layout och som vill etablera sig i det expansiva området Gårda allt till en mycket förmånlig hyresnivå. Vi kan även erbjuda flexibla korttidskontrakt för att passa just era behov.
Tveka inte att höra av er vid eventuella frågor!
Sara Mannerström
0704-967678
Omgivning
Gårda är en attraktiv blandstad som kombinerar bostäder, kontor, service och vård på ett harmoniskt sätt. Med närhet till både Göteborgs Centralstation och Landvetter flygplats är området perfekt för både pendlare och resenärer, vilket gör det till en bekväm plats för såväl arbetsliv som fritid. Gårda erbjuder en komplett och trivsam miljö för alla som verkar här.
Mölndalsån bidrar till en naturlig och grönskande omgivning, perfekt för trevliga promenader och avkopplande stunder utomhus. Längs ån finns flera platser att stanna vid och njuta av den fridfulla atmosfären ett idealiskt sätt att koppla av på lunchrasten eller efter en lång arbetsdag.
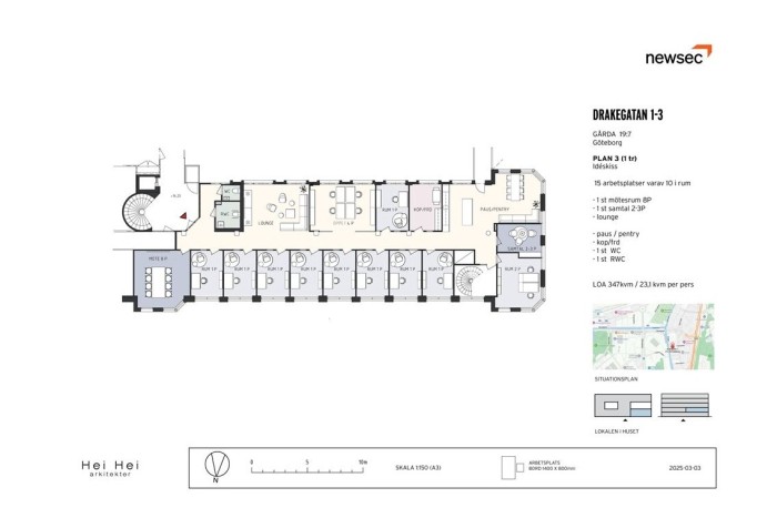
Planlösning
Denna lokal erbjuder en mycket effektiv och flexibel arbetsmiljö, med hela nio enskilda kontor och två rymliga konferensrum som skapar optimala förutsättningar för både privata möten och stora gruppdiskussioner.
Här finns även ett stort, nyrenoverat pentry, perfekt för både fika och gemensamma lunchstunder. Lokalen har två fräscha toaletter i direkt anslutning till entrén, vilket ger en praktisk och komfortabel arbetsmiljö.
Förutom kontoren finns två stora öppna ytor som kan användas för olika ändamål skapa ett inspirerande öppet landskap, en kreativ projektyta eller en avslappnad loungegrupp för spontana möten och erfarenhetsutbyte.
Korridoren har en textilmatta medan rummen är klädda i parkett, vilket ger ett både funktionellt och estetiskt tilltalande intryck.
Kommunikationer
Från denna centrala plats har du lätt tillgång till både E6:an och riksväg 40, vilket gör det enkelt att ta sig runt i regionen.
Med cykel eller till fots når du snabbt Göteborgs mest centrala platser, som Centralstationen, Liseberg, Svenska Mässan och Ullevi.
Buss 60 går var femte minut och tar dig både österut och västerut, vilket ger bra förbindelser till hela staden. Närmaste spårvagnshållplatser finns vid Svingeln eller Ullevi Södra.
Busslinje 753 passerar huvudgatan Fabriksgatan i Gårda, bara 150 meter från fastigheten, och tar dig hela vägen från Mölndal i söder till Heden i centrum.
För den som cyklar finns en Styr & Ställ-station strax utanför fastigheten.
Service
Från denna centrala plats har du lätt tillgång till både E6:an och riksväg 40, vilket gör det enkelt att ta sig runt i regionen.
Med cykel eller till fots når du snabbt Göteborgs mest centrala platser, som Centralstationen, Liseberg, Svenska Mässan och Ullevi.
Buss 60 går var femte minut och tar dig både österut och västerut, vilket ger bra förbindelser till hela staden. Närmaste spårvagnshållplatser finns vid Svingeln eller Ullevi Södra.
Busslinje 753 passerar huvudgatan Fabriksgatan i Gårda, bara 150 meter från fastigheten, och tar dig hela vägen från Mölndal i söder till Heden i centrum.
För den som cyklar finns en Styr & Ställ-station strax utanför fastigheten.