Backa bergögata 7
Backadal, Göteborg, 72 - 300 m2
Lediga kontorslokaler i attraktiv fastighet på Backa Bergögata Nu finns möjlighet att hyratrevliga och representativa kontorslokaleri enrenoverad fastighetpåBacka Bergögata 5...
Dokument
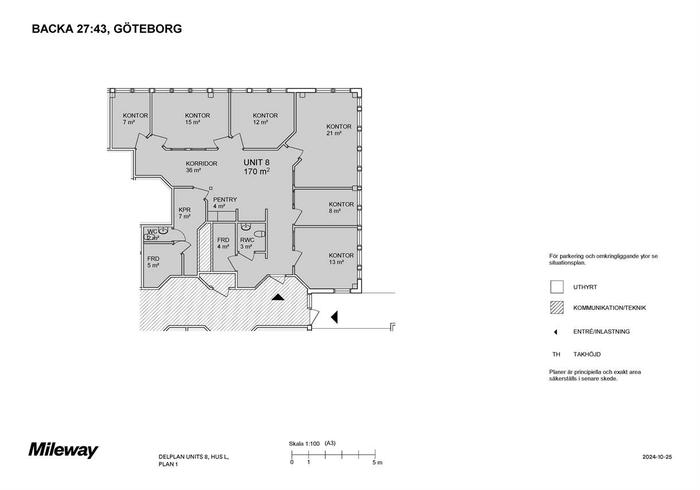
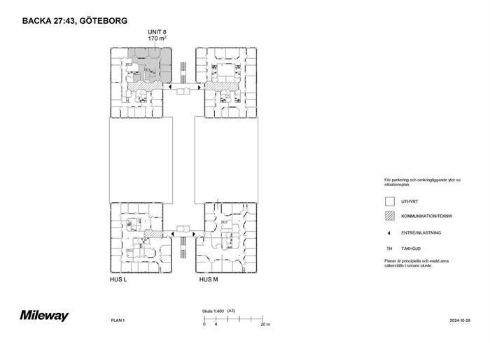
Ritning - Mileway - Backa 27-43 Göteborg_Unit 8.pdfKontor/Övrigt, 170 m2, Göteborg, Backadal
Hyra: Kontakta annonsören
Välplanerad kontorslokal om 170 kvm i trevlig kontors- och lagerbyggnad. Lokalen ligger på första våningen (en trappa upp) och erbjuder en flexibel planlösning med kontorsrum i olika storlekar, mötesrum samt bekväma faciliteter som pentry/kök, pausyta, förråd, dusch, bastu och WC. Fastigheten ligger med fri access till Backa Bergögata och parkering med möjlighet till elbilsladdning finns i anslutning till lokalen.
Backa är ett populärt industriområde präglat av handel, logistik och tillverkning som ligger strategiskt placerat 7 kilometer norr om centrala Göteborg, i direkt anslutning till E6. Området är beläget i närheten av Stigs Center och endast ett par kilometer från Bäckebol Köpcenter där det finns ett brett serviceutbud av butiker och restauranger att tillgå. Det finns goda kollektivtrafikförbindelser med buss till centrala Göteborg.
Volvo Car, Swedol, Dagab, PostNord, BGM Logistics AB och Budbee
Parkeringsmöjligheter/garage:Parkeringsplatser på fastigheten (med möjlighet till elbilsladdning)
Vägbeskrivning:Direkt anslutning till E6
Backa 27:43
Byggår:1990
Renoveringsår:2008
Våningsplan:2 av 2
Planlösning:Se bilder/PDF.
Goda kollektivtrafikförbindelser med buss till centrala Göteborg
Närhet till levande handelsplats kring Stigs Center och Bäckebol Köpcenter med ett brett serviceutbud av butiker, gym och restauranger
Trapphus med hiss
Hiss:Ja
Kontraktlängd:Förhandlingsbart
Kontrakttyp:Förstahandskontrakt
Tillträde:Omgående