Dokument

Ritning kontor 363 kvm.pdf
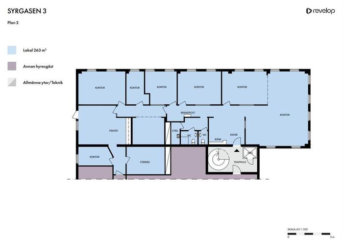
Ritning kontor 263 kvm.pdf

Aminogatan 15

Kontor, 263 m2, Göteborg, Åbro

Hyra: Kontakta annonsören

Attraktiv kontorslokal i närheten av GoCo i Åbro

Vill ni etablera er verksamhet i Åbro? Nu erbjuder vi en kontorslokal med en strategiskt positionerad plats samt bekväm närhet med direktacces till söderleden, kollektivtrafik och övriga faciliteter. Det gör det enkelt för medarbetare att komma till och från arbetet utan problem.

Lokalen finns på plan 2 och ytan är idag fördelad på ett öppet kontroslandskap samt ett antal mindre kontorsrum. 

Missa inte chansen att säkra din nya kontorslokal idag. Välkommen att kontakta oss för att boka en visning!

Planlösning

Fastighetsbeteckning:

Syrgasen 3

Planlösning:

Planlösning fördelat på öppet kontorslandskap, mindre kontorsrum samt lunchrum.

Kommunikationer

Buss 25 hållplats AstraZeneca med kort gångavstånd till lokalen. Utöver det finns det linje 758 samt X90 som stannar vid Kryptongatan.

Övrigt

Tillträde:

Omgående

Kontakta Annonsör

Reza Rezaei

Reza Rezaei